Acton Road, Esh Winning, Durham, DH7 9QF
Durham
£275,000
Summary
*** NO UPPER CHAIN, LARGE DETACHED BUNGALOW, CONSERVATORY, DRIVEWAY AND GARAGE, MODERN FITTED KITCHEN, STYLISH BATHROOM, POPULAR LOCATION, VIEWINGS HIGHLY RECOMMENDED ***Details
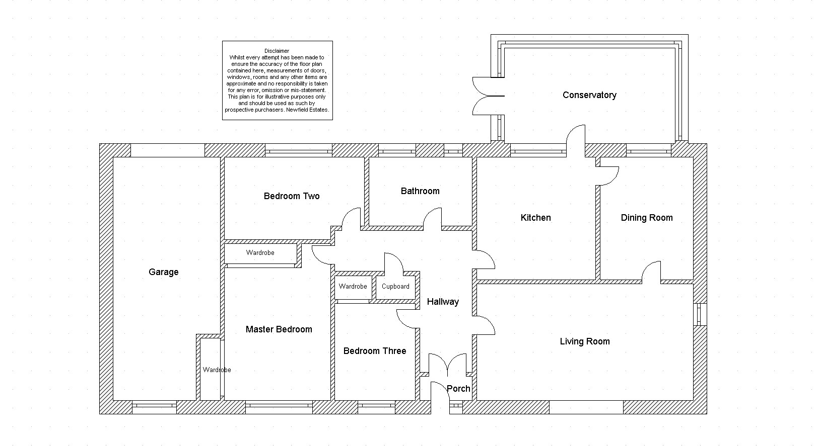
This three bedroom detached bungalow is located on Acton Road in Esh Winning, Durham. The property is being sold with the benefit of vacant possession. The property comprises: an entrance porch, hallway, spacious living room, dining room, modern fitted kitchen and a conservatory. There are also three bedrooms and a stylish bathroom with separate shower. Externally there is a front garden laid to lawn, a lengthy driveway leading to an attached garage and a rear garden laid to lawn with a paved patio. Viewings are highly recommended.
Front External
To the front of the property is a garden laid to lawn.
Entrance Porch
With tiled flooring.
Hallway
Including loft access via a drop down ladder, a built in cupboard, wood flooring and a radiator.
Living Room 6.081m x 3.376m
Spacious living room including wood flooring, three radiators, a double glazed window to the side and a patio door leading to the front of the property.
Dining Room 3.550m x 2.593m
Dining room with wood flooring, a radiator and a double glazed window to the rear.
Kitchen 3.550m x 3.326m
Modern kitchen including fitted wall and base units with a contrasting work surface, one and a half stainless steel sink/drainer with a mixer tap, an integrated oven, a built in microwave, four ring gas hob, extractor fan, an integrated slimline dishwasher, tiled splash back, a chrome towel heater, wood flooring, a double glazed window to the rear and a door leading to the conservatory.
Conservatory 4.950m x 2.941m
Conservatory with wood flooring, a radiator, plumbing for a washing machine, space for a tumble dryer, double glazed windows to the side and rear. French doors lead to the rear garden.
Master Bedroom 4.442m x 2.935m
Master bedroom including extensive fitted wardrobes, wood flooring, a radiator and a double glazed window to the front.
Bedroom Two 3.881m x 2.462m
Bedroom with wood flooring, a radiator and a double glazed window to the rear.
Bedroom Three 2.849m x 2.284m
Bedroom including a built in wardrobe, wood flooring, a radiator and a double glazed window to the front.
Bathroom 2.900m x 2.108m
Stylish bathroom including a bath, a walk in shower, a low level WC, pedestal wash hand basin, a chrome towel heater, tiled walls, tiled flooring, two double glazed windows to the rear.
Garage
Including an up and over door and a double glazed window to the front.
Agent Notes
1. The property is in council tax band D.
2. The seller has advised us that the property is freehold.
3. Utilities - Mains water, sewerage, electricity and gas.
4. Superfast broadband available to this property (checker.ofcom.org.uk)
5. Flood Risk - Rivers and Sea - very low, Surface Water - very low (gov.uk)
Disclaimer
The preceding details have been sourced from the seller and the websites listed above. Verification and clarification of this information, along with any further details concerning Material Information parts A, B & C, should be sought from a legal representative or appropriate authorities. Newfield Estates cannot accept liability for any information provided.