Alexandra Close, Framwellgate Moor, Durham, DH1 5ED
Durham
£195,000
Summary
*** NO UPPER CHAIN, SOUGHT AFTER LOCATION, DRIVEWAY AND GARAGE, FRONT AND REAR GARDENS, SPACIOUS FAMILY HOME, VIEWINGS HIGHLY RECOMMENDED ***Details
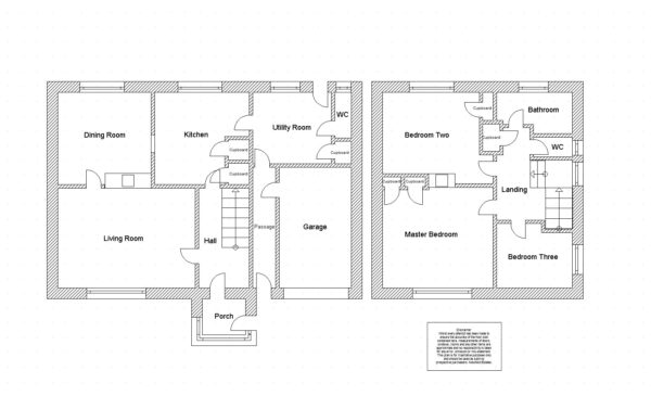
This three bedroom semi detached house is located in Alexandra Close in Framwellgate Moor, Durham. The property will make an ideal family home and is being sold with the benefit of vacant possession. The property comprises: an entrance porch, hallway, spacious living room, dining room, fitted kitchen, utility room and a downstairs WC. To the first floor there are three bedrooms and a bathroom with a separate WC. Externally there is a front garden and a driveway leading to an integral garage. To the rear is a garden mostly laid to lawn with mature planted borders. Viewings are highly recommended.
Front External
To the front of the property is a garden laid to lawn and a driveway leading to an integral garage.
Entrance Porch
With carpet flooring, double glazed windows to the front and side.
Hallway
Including carpet flooring and a night storage heater.
Living Room 4.900m x 3.617m
Spacious living room including an electric fire, carpet flooring and a double glazed window to the front.
Dining Room 3.405m x 3.366m
Dining room with carpet flooring, an night storage heater and a double glazed window to the rear.
Kitchen 3.327m x 3.323m
Kitchen including fitted wall and base units with a contrasting work surface, stainless steel sink/drainer with a mixer tap, an integrated oven, four ring electric hob, an integrated fridge, tiled splash back, carpet flooring, two built in storage cupboards and a double glazed window to the rear.
Utility Room 2.698m x 2.660m
Including a Belfast sink with dual taps, tiled walls, a built in cupboard, a double glazed window to the rear and a door leading to the rear garden.
Downstairs WC
With a low level WC, tiled walls and a double glazed window to the rear.
Stairs
With carpet flooring.
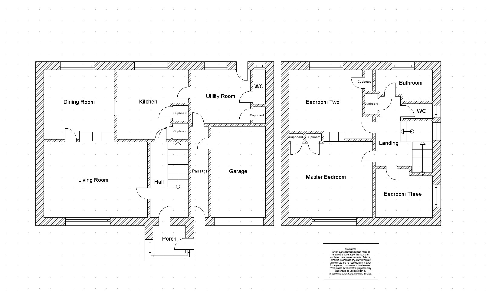
Landing
Including loft access, a built in storage cupboard, carpet flooring and a double glazed window to the side.
Master Bedroom 3.988m x 3.560m
Master bedroom including two built in single wardrobes, carpet flooring and a double glazed window to the front.
Bedroom Two 3.520m x 2.989m
Bedroom with a built in cupboard, carpet flooring and a double glazed window to the rear.
Bedroom Three 2.806m x 2.419m
Bedroom including a built in wardrobe, carpet flooring and a double glazed window to the side.
Bathroom 2.804m x 1.645m
Bathroom including a bath with an electric shower above, pedestal wash hand basin, carpet flooring, tiled walls and a double glazed window to the rear.
WC
With a low level WC, carpet flooring, tiled walls and a double glazed window to the side.
Garage 5.163m x 2.685m
With an up and over door.
Rear Garden
To the rear of the property is an enclosed garden laid to lawn with planted borders.
Agent Notes
1. The property is in council tax band C.
2. The seller has informed us that the property is freehold.
3. Utilities - Mains water, sewerage and electricity.
4. Superfast broadband available to this property (checker.ofcom.org.uk)
5. Flood Risk - Rivers and Sea - very low, Surface Water - very low (gov.uk)
Disclaimer
The preceding details have been sourced from the seller and the websites listed above. Verification and clarification of this information, along with any further details concerning Material Information parts A, B & C, should be sought from a legal representative or appropriate authorities. Newfield Estates cannot accept liability for any information provided.