Alexandra Close, Framwellgate Moor, Durham, DH1 5ED
Durham
£210,000
Summary
*** IDEAL FAMILY HOME, WORCESTER COMBI BOILER INSTALLED MARCH 2025, FRONT AND REAR GARDENS, DRIVEWAY AND GARAGE, DOWNSTAIRS WC, SOUGHT AFTER LOCATION, VIEWINGS HIGHLY RECOMMENDED ***Details
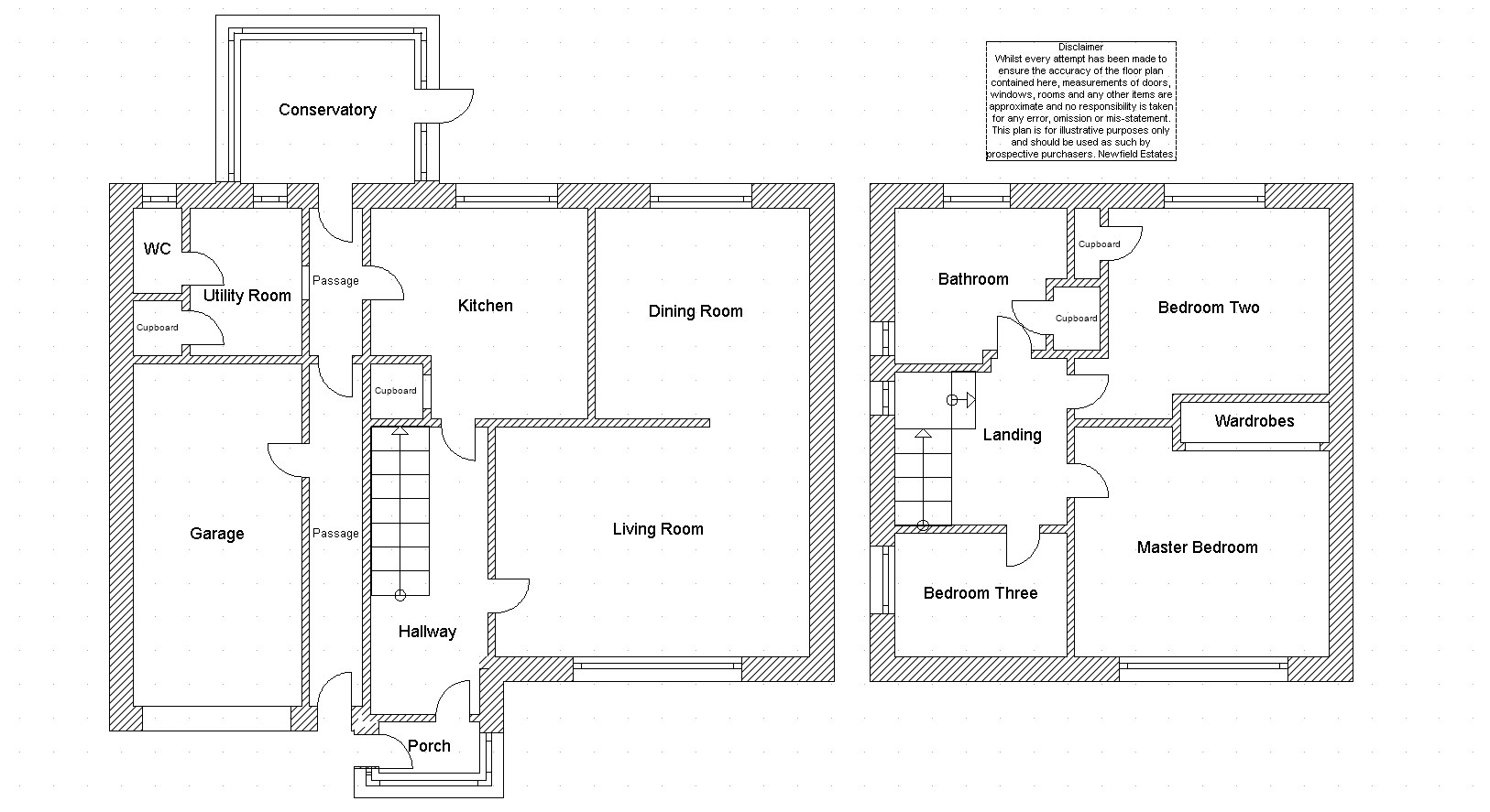
This three bedroom semi detached house is located in Alexandra Close in Framwellgate Moor, Durham. The property will make an ideal family home and benefits from a Worcester combi boiler installed in March 2025. The property comprises: an entrance porch, hallway, spacious living room, dining room, fitted kitchen, conservatory, utility room and a downstairs WC. To the first floor there are three bedrooms and a bathroom with separate shower cubicle. Externally there is a front garden and a driveway leading to an integral garage. To the rear is a low maintenance garden with a shed. Viewings are highly recommended.
Front External
To the front of the property is a small garden and a driveway leading to an integral garage.
Entrance Porch
With carpet flooring, double glazed windows to the front and side.
Hallway
Including carpet flooring and a radiator.
Living Room 4.907m x 3.647m
Spacious living room including carpet flooring, a radiator and a double glazed window to the front.
Dining Room 3.407m x 3.361m
Dining room with carpet flooring, a radiator and a double glazed window to the rear.
Kitchen 3.341m x 3.330m
Kitchen including fitted wall and base units with a contrasting work surface, one and a half stainless steel sink/drainer with a mixer tap, an integrated oven, four ring electric hob, extractor fan, plumbing for a washing machine, carpet flooring, a wall mounted feature radiator, an under stairs cupboard and a double glazed window to the rear.
Conservatory 3.042m x 2.939m
Including carpet flooring, double glazed windows to the side and rear. A door leads to the rear garden.
Utility Room 2.423m x 1.767m
With fitted wall and base units, sink with a mixer tap, tiled flooring, tiled splash back, a built in cupboard, a radiator and a double glazed window to the rear.
Downstairs WC
Including a low level WC, wash hand basin, partially tiled walls, tiled flooring and a double glazed window to the rear.
Stairs
With carpet flooring.
Landing
Including access to a partially boarded loft, carpet flooring and a double glazed window to the side.
Master Bedroom 3.997m x 3.296m
Spacious master bedroom including extensive fitted wardrobes, carpet flooring, a radiator and a double glazed window to the front.
Bedroom Two 3.503m x 2.994m
Bedroom with extensive fitted wardrobes, a built in cupboard, carpet flooring, a radiator and a double glazed window to the rear.
Bedroom Three 2.788m x 2.077m
Bedroom including carpet flooring, a radiator and a double glazed window to the side.
Bathroom 2.773m x 2.545m
Bathroom including a bath with an electric shower above, a shower cubicle with a mains shower, low level WC, bidet, pedestal wash hand basin, a built in cupboard, carpet flooring, a radiator, double glazed windows to the side and rear.
Garage 5.311m x 2.723m
Integral garage with power and light.
Rear Garden
To the rear of the property is a low maintenance garden including a shed.
Agent Notes
1. The property is in council tax band C.
2. The seller has informed us that the property is freehold.
3. Utilities - Mains water, sewerage, electricity and gas.
4. Superfast broadband available to this property (checker.ofcom.org.uk)
5. Flood Risk - Rivers and Sea - very low, Surface Water - very low (gov.uk)
Disclaimer
The preceding details have been sourced from the seller and the websites listed above. Verification and clarification of this information, along with any further details concerning Material Information parts A, B & C, should be sought from a legal representative or appropriate authorities. Newfield Estates cannot accept liability for any information provided.