Ayden Grove, Newton Hall, Durham, DH1 5FS
Durham
£210,000
Summary
*** WELL PRESENTED THROUGHOUT, LARGE MASTER BEDROOM WITH EN SUITE, NEWLY INSTALLED MODERN KITCHEN/DINER, DRIVEWAY AND GARAGE, IDEAL FOR A RANGE OF BUYERS, VIEWINGS HIGHLY RECOMMENDED ***Details
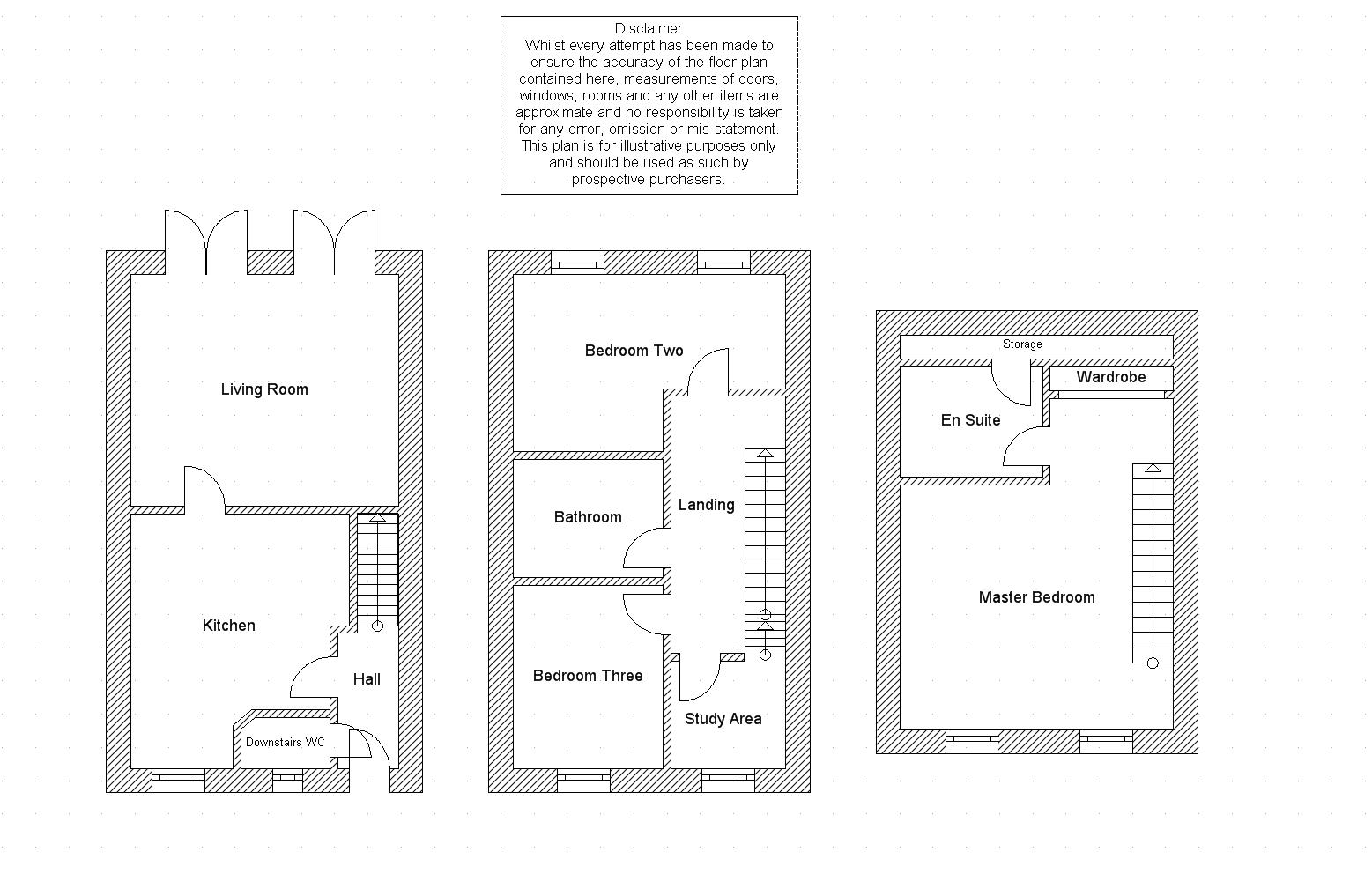
Built in 2008, this three bedroom town house is located on the hugely popular Ayden Grove in Newton Hall, Durham. The property is well presented throughout and will appeal to a wide range of purchasers. The property comprises on the ground floor; an entrance hallway, downstairs WC, newly installed modern kitchen/diner and a spacious living room. The first floor includes two bedrooms, a family bathroom and a study area. The master suite is located on the second floor including an en suite shower room. Externally there is a low maintenance garden to the rear. There is also a driveway and garage located to the rear of the property. Viewings are highly recommended.
Front External
To the front of the property is a low maintenance garden.
Downstairs WC
Including a low level WC, a wash hand basin, LVT flooring, a radiator and a double glazed window to the front.
Kitchen/Diner 4.22m x 3.43m (Measurements to Maximum)
Newly installed modern kitchen including fitted wall and base units with a contrasting work surface, sink/drainer with a boiling water tap, an integrated electric oven, an integrated microwave oven, four ring induction hob and extractor above, an integrated Hoover washing machine, an integrated Neff dishwasher. There is also LVT flooring, a tiled splash back, a radiator and a double glazed window to the front.
Living Room 4.45m x 3.4m
Spacious living room with a built in storage cupboard, LVT flooring, a radiator, two sets of French doors leading to the rear garden.
Stairs to First Floor
With carpet flooring.
First Floor Landing
With carpet flooring.
Bedroom Two 4.45m x 2.84m
Bedroom including carpet flooring, a radiator and two double glazed windows to the rear.
Bedroom Three 3.02m x 2.44m
Bedroom with carpet flooring, a radiator and a double glazed window to the front.
Bathroom 2.44m x 1.65m
Family bathroom including a bath with an electric shower above, a low level WC, a pedestal wash hand basin, a radiator, vinyl flooring, partially tiled walls and an extractor fan.
Study Area 1.96m x 1.9m
With carpet flooring, a radiator, a double glazed window to the front and stairs leading to the second floor.
Stairs to Second Floor
With carpet flooring.
Master Bedroom 4.45m x 3.84m
Spacious master bedroom including fitted double wardrobes, carpet flooring, two radiators and two double glazed windows to front.
En Suite 2.24m x 1.8m
Including a shower cubicle with an electric shower, a low level WC, pedestal wash hand basin, an extractor fan, vinyl flooring, a Keylite window, a radiator and a door leading to a large storage area.
Rear Garden
To the rear of the property is a low maintenance garden with decking, artificial lawn and a built in shed.
Garage and Driveway
Located a short walk from the rear garden with a driveway for off street parking.
Agent Notes
1. The property is in council tax band C.
2. The seller has advised us that the property is freehold.
3. Utilities - Mains water, sewerage, electricity and gas.
4. Ultrafast broadband available to this property (checker.ofcom.org.uk)
5. Flood Risk - Rivers and Sea - very low, Surface Water - very low (gov.uk)
Disclaimer
The preceding details have been sourced from the seller and the websites listed above. Verification and clarification of this information, along with any further details concerning Material Information parts A, B & C, should be sought from a legal representative or appropriate authorities. Newfield Estates cannot accept liability for any information provided.