Aykley Road, Framwellgate Moor, Durham, DH1 5JJ
Durham
£140,000
Summary
*** WELL PRESENTED THROUGHOUT, IDEAL FOR A RANGE OF BUYERS, LARGE CONSERVATORY, OFF STREET PARKING, REAR GARDEN ***Details
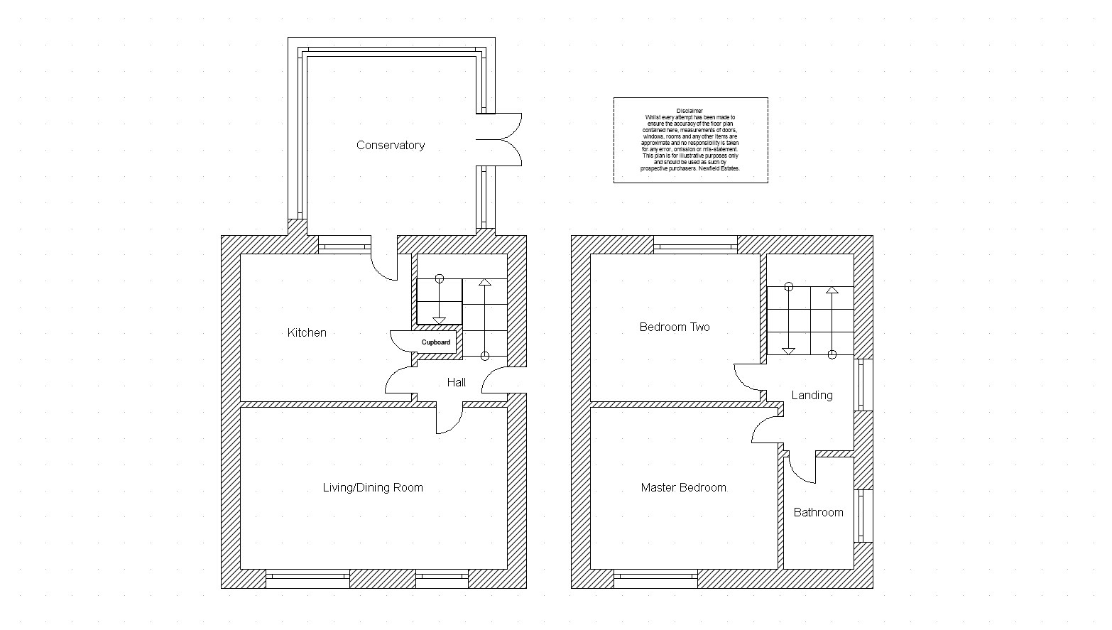
This two bedroom semi detached house is located on Aykley Road in Framwellgate Moor, Durham. The property is well presented throughout and will appeal to a wide range of purchasers. The property comprises: an entrance hall, spacious living/dining room, fitted kitchen and a large conservatory. To the first floor there are two double bedrooms and a stylish bathroom. Externally there is a block paved double driveway to the front and a good size garden to the rear, mostly laid to lawn. Viewings are highly recommended
Front External
To the front of the property is a double block paved driveway. There is a path leading to the front door.
Entrance Hall
With laminate flooring.
Living/Dining Room 5.44m x 3.33m
Spacious living room including laminate flooring,, a radiator and two double glazed windows to the front.
Kitchen 3.48m x 3.02m
Kitchen including fitted wall and base units with a contrasting work surface, an integrated electric oven, four ring gas hob, stainless steel extractor fan, one and a half stainless steel sink/drainer with a mixer tap, plumbing for a washing machine, vinyl flooring, under stairs storage cupboard and a double glazed window to the rear. There is a door leading to the conservatory.
Conservatory 3.76m x 3.58m
Large conservatory including laminate flooring, double glazed windows to the side and rear. French doors lead to the rear garden.
Stairs
With carpet flooring.
Landing
With loft access, carpet flooring and a double glazed window to the side.
Master Bedroom 3.8m x 3.33m
Master bedroom including laminate flooring, a radiator and a double glazed window to the front.
Bedroom Two 3.56m x 3.1m
Bedroom with a built in cupboard, laminate flooring, a radiator and a double glazed window to the rear.
Bathroom 2.36m x 1.5m
Bathroom including a bath with shower, low level WC, wash hand basin, a chrome towel heater, vinyl flooring, an extractor fan, partially tiled walls and a double glazed window to the side.
Rear Garden
To the rear of the property is a garden mostly laid to lawn with a paved patio and shed.
Agent Notes
1. The property is in council tax band A.
2. The seller has advised that the property is freehold.
3. Utilities - Mains water, sewerage, electricity and gas.
4. Ultrafast broadband available to this property (checker.ofcom.org.uk)
5. Flood Risk - Rivers and Sea - very low, Surface Water - very low (gov.uk)
6. The property has leased solar panels through a company called A Shade Greener.
Disclaimer
The preceding details have been sourced from the seller and the websites listed above. Verification and clarification of this information, along with any further details concerning Material Information parts A, B & C, should be sought from a legal representative or appropriate authorities. Newfield Estates cannot accept liability for any information provided.