Bek Road, Newton Hall, Durham, DH1 5LD
Durham
£135,000
Summary
*** NO UPPER CHAIN, MODERN FITTED KITCHEN, IDEAL FOR A RANGE OF PURCHASERS, FRONT AND REAR GARDENS, POPULAR LOCATION, VIEWINGS HIGHLY RECOMMENDED ***Details
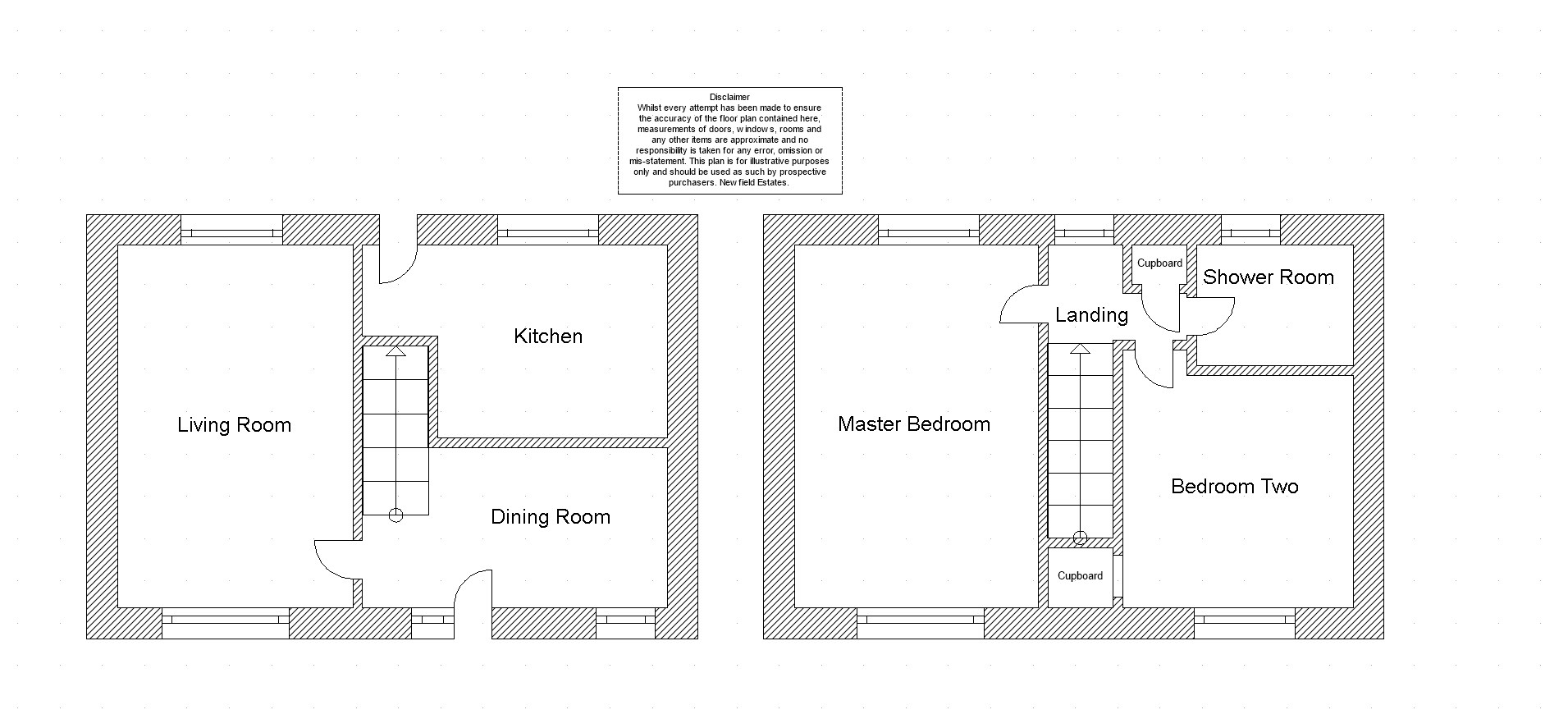
This two bedroom mid terraced house is located on Bek Road in Newton Hall, Durham. The property is being sold with the benefit of vacant possession and will appeal to a wide range of purchasers. The property comprises: a spacious living room, dining room and a modern kitchen. To the first floor there are two bedrooms and a shower room. Externally there is a front garden laid to lawn and a rear garden with a large paved patio, lawn and planted borders. Viewings are highly recommended.
Front External
To the front of the property is a garden laid to lawn.
Living Room 4.835m x 3.004m
Spacious living room including carpet flooring, a radiator, double glazed windows to the front and rear.
Dining Room 3.987m x 2.131m
Dining room with carpet flooring, a radiator and a double glazed window to the front.
Kitchen 3.953m x 2.568m
Modern kitchen including fitted wall and base units with a contrasting work surface, stainless steel sink/drainer with a mixer tap, gas cooker point, extractor fan, tiled flooring, an under stairs storage cupboard, a double glazed window to the rear and a door leading to the rear garden.
Stairs
With carpet flooring.
Landing
Including a built in cupboard housing the Main combi boiler, carpet flooring and a double glazed window to the rear.
Master Bedroom 4.863m x 3.084m
Master bedroom including carpet flooring, a radiator, double glazed windows to the front and rear.
Bedroom Two 3.095m x 3.050m
Bedroom with a built in cupboard, carpet flooring and a double glazed window to the front.
Shower Room 2.129m x 1.671m
Shower room including a shower cubicle with a mains shower, pedestal wash hand basin, low level WC, partially tiled walls, chrome towel heater, tiled flooring, loft access and a double glazed window to the rear.
Rear Garden
To the rear of the property is a garden with a large paved patio, lawn and planted borders.
Agent Notes
1. The property is in council tax band A.
2. The seller has advised us that the property is freehold.
3. Utilities - Mains water, sewerage, electricity and gas.
4. Ultrafast broadband available to this property (checker.ofcom.org.uk)
5. Flood Risk - Rivers and Sea - very low, Surface Water - very low (gov.uk)
Disclaimer
The preceding details have been sourced from the seller and the websites listed above. Verification and clarification of this information, along with any further details concerning Material Information parts A, B & C, should be sought from a legal representative or appropriate authorities. Newfield Estates cannot accept liability for any information provided.