Bek Road, Newton Hall, Durham, DH1 5LD
Durham
£800 pcm
Summary
*** SMART TWO BEDROOM TERRACED PROPERTY, AVAILABLE END OF APRIL/MAY 2026, IDEAL FOR A RANGE OF TENANTS, FRONT AND REAR GARDENS, POPULAR LOCATION, VIEWINGS HIGHLY RECOMMENDED ***Details
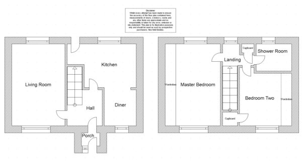
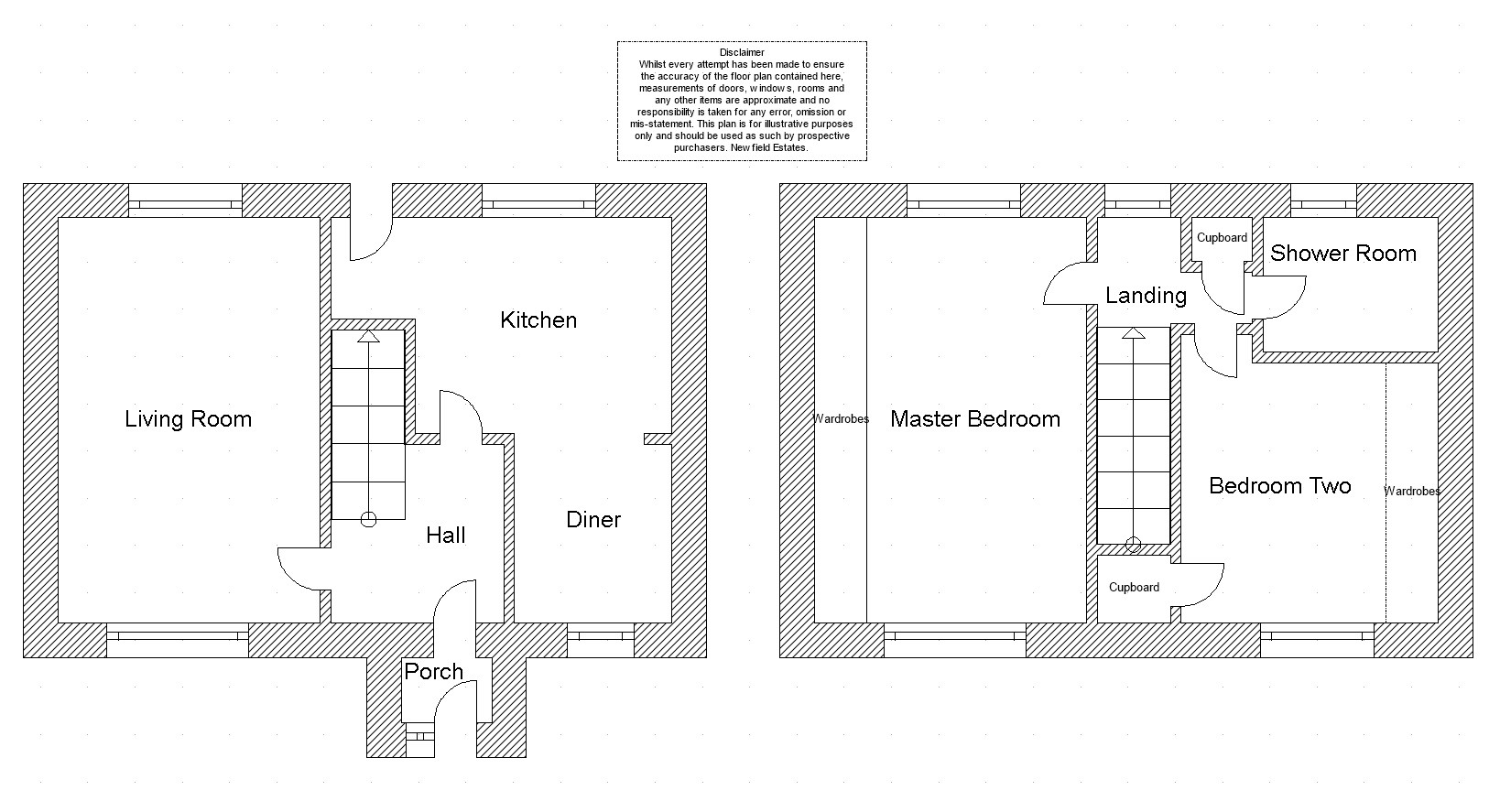
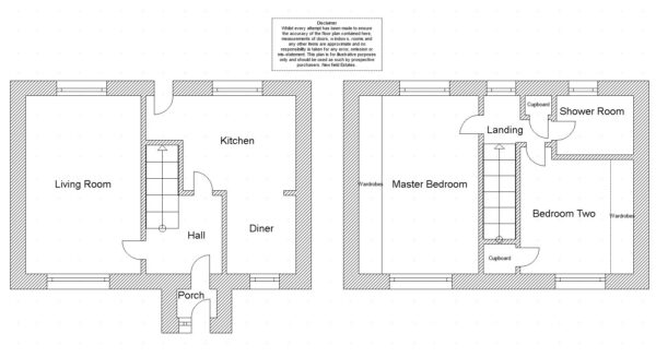
This two bedroom mid terraced house is located on Bek Road in Newton Hall, Durham. The property comprises: an entrance porch, hallway, spacious living room and an open plan kitchen/diner. To the first floor there are two bedrooms and a stylish shower room. Externally there are low maintenance gardens to the front and rear. Viewings are highly recommended.
Front External
To the front of the property is a low maintenance garden.
Entrance Porch
With carpet flooring.
Hallway
Including carpet flooring and a radiator.
Living Room 4.836m x 3.018m
Spacious living room including carpet flooring, two radiators, double glazed windows to the front and rear.
Kitchen/Diner 4.83m x 3.94m (Measurements to Maximum)
Kitchen including fitted wall and base units with a contrasting work surface, stainless steel sink/drainer with a mixer tap, electric cooker point, plumbing for a washing machine, tiled flooring, tiled splash back, an under stairs cupboard, a radiator, double glazed windows to the front and rear. A door leads to the rear garden.
Stairs
With carpet flooring.
Landing
With a built in cupboard housing the combi boiler, carpet flooring and a double glazed window to the rear.
Master Bedroom 4.836m x 2.530m
Master bedroom including extensive fitted wardrobes, carpet flooring, two radiators, double glazed windows to the front and rear.
Bedroom Two 3.086m x 2.486m
Bedroom with loft access, a built in cupboard, extensive fitted wardrobes, carpet flooring, a radiator and a double glazed window to the front.
Shower Room 2.093m x 1.664m
Shower room including a shower cubicle with a mains shower, low level WC, pedestal wash hand basin, tiled walls, tiled flooring and a double glazed window to the rear.
Rear Garden
To the rear of the property is a low maintenance garden.
Agent Notes
1. The property is in council tax band A.
2. The seller has advised us that the property is freehold.
3. Utilities - Mains water, sewerage, electricity and gas.
4. Ultrafast broadband available to this property (checker.ofcom.org.uk)
5. Flood Risk - Rivers and Sea - very low, Surface Water - very low (gov.uk)
Disclaimer
The preceding details have been sourced from the seller and the websites listed above. Verification and clarification of this information, along with any further details concerning Material Information parts A, B & C, should be sought from a legal representative or appropriate authorities. Newfield Estates cannot accept liability for any information provided.
MOVE IN COSTS
In order to move into this property the applicant is required to pay the following
Non Refundable one weeks rent deposit to secure the property whilst the referencing is carried out. £180.00
Then the initial monies due on the day the applicant moves in are
First months rent minus the deposit - £620.00
Damage Deposit (the same as 5 weeks rent) £920.00
Total move in costs are: £1720.00