Canterbury Road, Newton Hall, Durham, DH1 5PY
Durham
£240,000
Summary
*** NO UPPER CHAIN, CORNER PLOT, IDEAL FAMILY HOME, DOUBLE DRIVEWAY, GARAGE, GARDENS TO FRONT, REAR AND SIDE, VIEWINGS HIGHLY RECOMMENDED ***Details
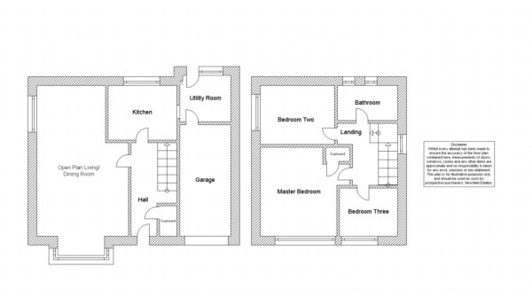
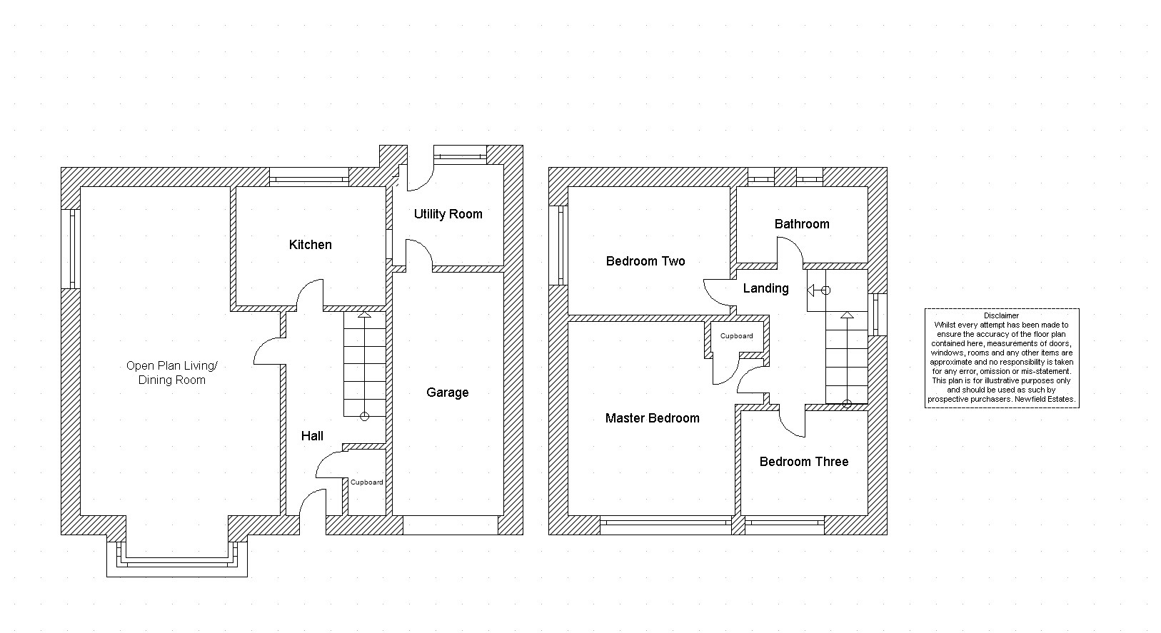
This three bedroom detached house is located on Canterbury Road in Newton Hall, Durham. Situated on a corner plot, the property would make an ideal family home. The property comprises: an entrance hall, open plan living/dining room, kitchen and a utility room. To the first floor there are three bedrooms and a bathroom with a separate shower cubicle. Externally there is a block paved double driveway to the front leading to an integral single garage. There are gardens to the side and rear laid to lawn. Viewings are highly recommended.
Front External
To the front of the property is a garden laid to lawn and block paved double driveway leading to an integral single garage.
Entrance Hall
Including built in cupboard and a radiator.
Open Plan Living/Dining Room 7.37m x 4.04m (Measurements to Maximum)
Spacious open plan living/dining room including two radiators, double glazed windows to the front and side.
Kitchen 2.963m x 2.504m
Kitchen including wall and base units with a contrasting work surface, stainless steel sink/drainer with a mixer tap, five ring gas hob, a radiator and a double glazed window to the rear.
Utility Room 2.176m x 2.169m
With a wall and base unit, plumbing for a washing machine, wall mounted combi boiler, a radiator, a double glazed window to the rear, a door leading to the garage and a door leading to the rear garden.
Stairs
Landing
Including access to a partially boarded loft, carpet flooring and a double glazed window to the side.
Master Bedroom 3.932m x 3.403m
Master bedroom including laminate flooring, a radiator and a double glazed window to the front.
Bedroom Two 3.316m x 2.683m
Bedroom with laminate flooring, a radiator and a double glazed window to the side.
Bedroom Three 2.656m x 2.235m
Bedroom including laminate flooring, a radiator and a double glazed window to the front.
Bathroom 2.726m x 1.696m
Bathroom including a bath, shower cubicle, low level WC, wash hand basin, a radiator, partially tiled walls, two double glazed windows to the rear.
Garage 4.868m x 2.364m
Rear and Side Gardens
There are gardens laid to lawn to the side and rear of the property.
Agent Notes
1. The property is in council tax band C.
2. The seller has informed us that the property is freehold.
3. Utilities - Mains water, sewerage, electricity and gas.
4. Ultrafast broadband available to this property (checker.ofcom.org.uk)
5. Flood Risk - Rivers and Sea - very low, Surface Water - very low (gov.uk)
Disclaimer
The preceding details have been sourced from the seller and the websites listed above. Verification and clarification of this information, along with any further details concerning Material Information parts A, B & C, should be sought from a legal representative or appropriate authorities. Newfield Estates cannot accept liability for any information provided.