Chichester Road, Newton Hall, Durham, DH1 5QG
Durham
£1,200 pcm
Summary
Semi-detached house in Durham featuring 3 bedrooms, offered unfurnished. This modern and spacious property boasts a clean and stylish interior, ideal for a peaceful living environment. Enjoy the convenience of a well established garden, off-street parking, and a garage.Details
Charming 3-bedroom semi-detached house available in the picturesque city of Durham. This unfurnished property boasts a clean, modern, and stylish interior, perfect for those seeking a quiet and spacious living environment. The house features a lovely garden, ideal for outdoor relaxation, as well as off-street parking and a garage for convenience. Located in a desirable neighbourhood, this property offers a peaceful retreat while still being within easy reach of local amenities and transportation links. Don't miss the opportunity to make this wonderful house your home. Contact us today to arrange a viewing and secure your place in this sought-after location.
Front External
To the front of the property is a large block paved driveway leading to an integral garage.
Entrance Hall
Including a built in cupboard and carpet flooring.
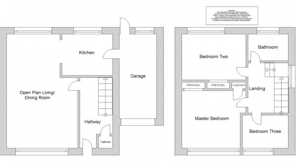
Living Room (Open Plan) 4.020m x 4.008m
Spacious living room including carpet flooring and a double glazed window to the front.
Dining Room 3.071m x 2.445m
With carpet flooring and a double glazed window to the rear.
Kitchen 2.923m x 2.445m
Kitchen including fitted wall and base units with a granite work surface, sink with mixer tap, an integrated double oven, four ring electric hob, extractor fan, an integrated fridge, an integrated freezer, plumbing for a washing machine, vinyl flooring and a double glazed window to the rear.
Stairs
With carpet flooring.
Landing
Including loft access, carpet flooring and a double glazed window to the side.
Master Bedroom 3.353m x 3.310m
Bedroom including a built in wardrobe, a built in cupboard, carpet flooring and a double glazed window to the front.
Bedroom Two 3.661m x 2.685m
Bedroom with a built in wardrobe, carpet flooring and a double glazed window to the rear.
Bedroom Three 2.678m x 2.157m
Bedroom including carpet flooring and a double glazed window to the front.
Bathroom 2.328m x 1.661m
Bathroom including a bath with mains shower above, low level WC, pedestal wash hand basin, tiled walls, vinyl flooring and a double glazed window to the rear.
Garage 4.879m x 2.351m
With a single glazed window to the rear and a door leading to the rear garden.
Rear Garden
To the rear of the property is a good sized garden mostly laid to lawn with planted borders and a paved patio.
Agent Notes
1. The property is in council tax band B.
2. The seller has informed us that the property is freehold.
3. Utilities - Mains water, sewerage, electricity and gas.
4. Ultrafast broadband available to this property (checker.ofcom.org.uk)
5. Flood Risk - Rivers and Sea - very low, Surface Water - very low (gov.uk)
Disclaimer
The preceding details have been sourced from the seller and the websites listed above. Verification and clarification of this information, along with any further details concerning Material Information parts A, B & C, should be sought from a legal representative or appropriate authorities. Newfield Estates cannot accept liability for any information provided.
Move in Costs
To move into this property you will need to pay the following costs:
Initial deposit to secure the property - equal to one weeks rent - £275.00 (non refundable)
Then once the references are done you will pay your remaining first months rent £925.00
Damage Deposit - £1385.00
Total remaining monies - £2310.00
Total overall monies - £2585.00