Edlingham Road, Newton Hall, Durham, DH1 5YS
Durham
£299,950
Summary
*** STUNNING PRESENTATION THROUGHOUT, LARGE FAMILY HOME, FRONT,SIDE AND REAR GARDENS, MODERN KITCHEN OPENING TO LARGE CONSERVATORY, MASTER BEDROOM WITH EN SUITE, SOUGHT AFTER LOCATION, VIEWINGS HIGHLY RECOMMENDED ***Details
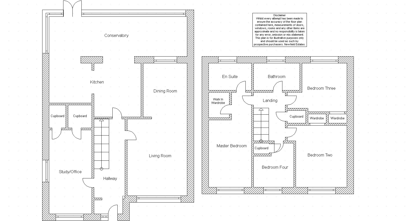
This stunning four bedroom semi detached house is located on the popular Edlingham Road in Newton Hall, Durham. The property boasts a greatly extended floor plan and the presentation is excellent throughout. The property comprises: an entrance hall, spacious open plan living/dining room, study/office and a modern fitted kitchen opening into a large conservatory. To the first floor is a master bedroom with a walk in wardrobe and en suite shower room, three further bedrooms and a stylish bathroom. Externally there is a front garden laid to lawn and a driveway offering parking for three vehicles. The rear garden is mainly laid to lawn with an area of gravel, a decked terrace with pergola and side access to the front. To the side of the property is a garden mostly laid to lawn with trees. Viewings are highly recommended.
Front External
To the front of the property is a garden laid to lawn and a driveway allowing off street parking for three vehicles.
Entrance Hall
With an under stairs storage cupboard, tiled flooring and a radiator.
Living Room (Open Plan) 4.408m x 3.504m
Spacious living room including laminate flooring, a radiator and a double glazed window to the front.
Dining Room (Open Plan) 3.163m x 2.633m
Dining room with laminate flooring, a radiator and a double glazed window to the rear.
Kitchen 5.440m x 3.277m
Modern kitchen including fitted wall and base units with a Silestone work surface, one and a half sink with a boiling water tap, an integrated double oven, five ring gas hob, extractor fan, plumbing for a washing machine, plumbing for a dishwasher and LVT flooring,
Conservatory 7.859m x 2.541m
Opening from the kitchen, the conservatory includes LVT flooring, a radiator, an electric heater, double glazed windows to the side and rear. French doors lead to the rear garden.
Study/Office 4.809m x 2.560m
Including two built in storage cupboards, a radiator, laminate flooring, double glazed windows to the side and rear.
Stairs
With carpet flooring.
Landing
Including a built in cupboard and carpet flooring.
Master Bedroom 5.377m x 2.576m
Master bedroom including a walk in wardrobe, loft access, carpet flooring, a radiator and a double glazed window to the front.
En Suite 2.537m x 1.716m
En suite including a shower cubicle with a mains shower, low level WC, 'his and hers' sinks, chrome towel heater, an extractor fan, tiled walls, tiled flooring and a double glazed window to the rear.
Bedroom Two 3.611m x 2.995m
Bedroom with a built in double wardrobe, laminate flooring, a radiator and a double glazed window to the front.
Bedroom Three 2.888m x 2.680m
Bedroom including access to a partially boarded loft, a built in double wardrobe, carpet flooring, a radiator and a double glazed window to the rear.
Bedroom Four 2.647m x 2.291m
Bedroom with a built in cupboard, carpet flooring, a radiator and a double glazed window to the front.
Bathroom 2.622m x 1.716m
Stylish bathroom including a bath, low level WC, wash hand basin, partially tiled walls, vinyl flooring and a double glazed window to the rear.
Rear Garden
To the rear of the property is a good size garden mostly laid to lawn with an area of gravel, a decked terrace with a pergola. There is an outside tap, multiple outside power sockets and access to the front.
Side Garden
To the side of the property is a garden laid to lawn with trees. This area of land has a separate title number but is freehold and owned by the property.
Agent Notes
1. The property is in council tax band C.
2. The seller has advised us that the property is freehold.
3. Utilities - Mains water, sewerage, electricity and gas.
4. Superfast broadband available to this property (checker.ofcom.org.uk)
5. Flood Risk - Rivers and Sea - very low, Surface Water - very low (gov.uk)
6. The property has leased solar panels through a company called a Shade Greener. Further information is available if required.
Disclaimer
The preceding details have been sourced from the seller and the websites listed above. Verification and clarification of this information, along with any further details concerning Material Information parts A, B & C, should be sought from a legal representative or appropriate authorities. Newfield Estates cannot accept liability for any information provided.