Farnham Close, Newton Hall, Durham, DH1 5FL
Durham
£80,000
Summary
*** NO UPPER CHAIN, NEW DOUBLE GLAZING, WORCESTER COMBI BOILER, OFF ROAD PARKING SPACE, COMMUNAL GARDENS, WELL PRESENTED ***Details
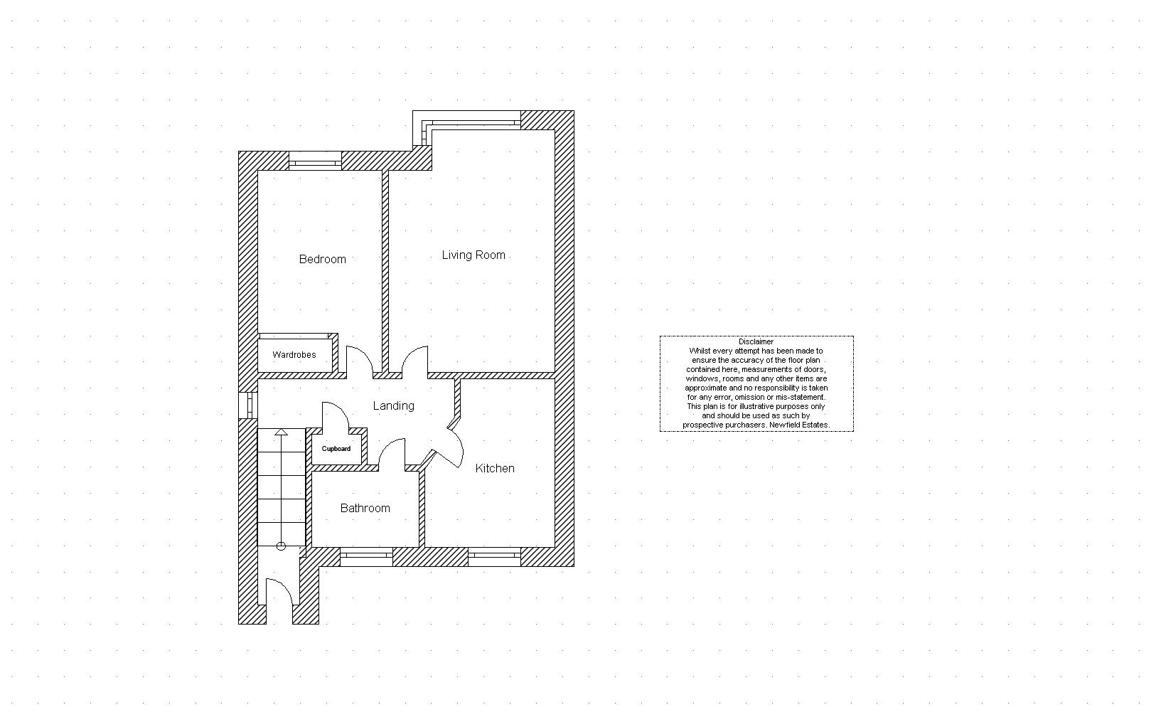
This one bedroom first floor flat is located on Farnham Close in Newton Hall, Durham. The property is well presented throughout and is being sold with no upper chain. The property comprises: an entrance hall, stairs to first floor, landing, spacious living room, modern fitted kitchen, master bedroom and a bathroom. Externally there is a communal garden area and an off street car parking space. Viewings are highly recommended.
Entrance Hall
Stairs To First Floor
With carpet flooring.
First Floor Landing
Including access via a drop down ladder to a loft, a built in storage cupboard, carpet flooring and a double glazed window to the side.
Living Room 4.85m x 3.4m
Spacious living room including carpet flooring, a radiator and a double glazed window to the rear.
Kitchen 3.45m x 2.7m (Measurements to maximum)
Kitchen including fitted wall and base units with a contrasting work surface, stainless steel sink/drainer with a mixer tap, an integrated electric oven, four ring hob with extractor fan above, an integrated dishwasher, plumbing for a washing machine, tiled splash back, a radiator, laminate flooring and a double glazed window to the front.
Bedroom 4.1m x 2.62m
Bedroom including fitted wardrobes, laminate flooring, a radiator and a double glazed window to the rear.
Bathroom 2.13m x 1.68m
Bathroom including a bath with an electric shower above, low level WC, pedestal wash hand basin, vinyl flooring, partially tiled walls, a radiator and a double glazed window to the front.
Externally
The property benefits from a small garden area next to the front door. There is also a communal garden laid to lawn and off street car parking.
Agent Notes
1. The property is in council tax band A.
2. The seller has advised us that the property is leasehold.
3. Utilities - Mains water, sewerage, electricity and gas.
4. Ultrafast broadband available to this property (checker.ofcom.org.uk)
5. Flood Risk - Rivers and Sea - very low, Surface Water - very low (gov.uk)
Leasehold Details
The property is leasehold. The lease term is 99 years from the 31st October 1991. There are currently 65 years left on the lease.
The seller has advised the annual service charge is approximately £100 per annum. The annual ground rent is £1.
Disclaimer
The preceding details have been sourced from the seller and the websites listed above. Verification and clarification of this information, along with any further details concerning Material Information parts A, B & C, should be sought from a legal representative or appropriate authorities. Newfield Estates cannot accept liability for any information provided.