Featherstone Road, Newton Hall, Durham, DH1 5YW
Durham
£250,000
Summary
*** NO UPPER CHAIN, IDEAL FAMILY HOME, WELL PRESENTED, DOUBLE DRIVEWAY, WEST FACING REAR GARDEN, MODERN FITTED KITCHEN, POPULAR LOCATION ***Details
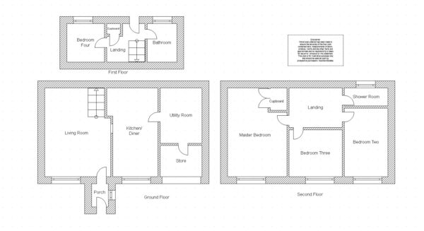
This four bedroom semi detached split level house is located on Featherstone Road in Newton Hall, Durham. The property is well presented and is being sold with the benefit of vacant possession. The property comprises: an entrance porch, living room, a modern fitted kitchen/diner and a utility room. To the split level first floor is the fourth bedroom and a stylish bathroom. To the split level second floor are three bedrooms and a shower room. Externally the property has a front garden laid to lawn and a double driveway leading to a store. To the rear of the property is a low maintenance West facing garden. Viewings are highly recommended.
Front External
To the front of the property is a garden laid to lawn and a block paved double driveway.
Entrance Porch
Entrance porch with a double glazed window to the side.
Living Room 4.978m x 3.664m
Spacious living room including laminate flooring, a radiator and a double glazed window to the front.
Kitchen/Diner 4.978m x 2.456m
Kitchen including fitted wall and base units with a contrasting work surface, sink/drainer with a mixer tap, an integrated electric oven, four ring gas hob, extractor fan, plumbing for a dishwasher, tiled splash back, laminate flooring, a radiator and a double glazed window to the front.
Utility Room 3.254m x 2.420m
Including fitted wall and base units with a contracting work surface and plumbing for a washing machine.
Stairs
With carpet flooring.
First Floor Landing
Including a cupboard housing the boiler, carpet flooring, a radiator and a door leading to the rear garden.
Bedroom Four 2.370m x 2.205m
Bedroom with laminate flooring, a radiator and a double glazed window to the rear.
Bathroom 2.370m x 1.780m
Stylish bathroom including a bath with a shower above, low level WC, wash hand basin, a radiator, vinyl flooring, an extractor fan and a double glazed window to the rear.
Stairs
With carpet flooring.
Second Floor Landing
With carpet flooring.
Master Bedroom 4.922m x 3.326m
Master bedroom including a built in cupboard, carpet flooring, a radiator and a double glazed window to the front.
Bedroom Two 3.633m x 2.403m
Bedroom with laminate flooring, a radiator and a double glazed window to the front.
Bedroom Three 2.877m x 2.680m
Bedroom including laminate flooring, a radiator and a double glazed window to the front.
Shower Room
Including a shower cubicle, low level WC, pedestal wash hand basin, low level WC, chrome towel heater, vinyl flooring and a double glazed window to the rear.
Store 2.420m x 1.859m
With power.
Rear Garden
To the rear of the property is a low maintenance West facing garden.
Agent Notes
1. The property is in council tax band C
2. The seller has advised us that the property is freehold.
3. Utilities - Mains water, sewerage, electricity and gas.
4. Ultrafast broadband available to this property (checker.ofcom.org.uk)
5. Flood Risk - Rivers and Sea - very low, Surface Water - very low (gov.uk)
Disclaimer
The preceding details have been sourced from the seller and the websites listed above. Verification and clarification of this information, along with any further details concerning Material Information parts A, B & C, should be sought from a legal representative or appropriate authorities. Newfield Estates cannot accept liability for any information provided.