Finchale View, Pity Me, Durham, DH1 5DJ
Durham
£275,000
Summary
*** NO UPPER CHAIN, RARE TO THE MARKET, DRIVEWAY AND GARAGE, FRONT AND REAR GARDENS, DOWNSTAIRS WC, THREE RECEPTION ROOMS, VIEWINGS HIGHLY RECOMMENDED ***Details
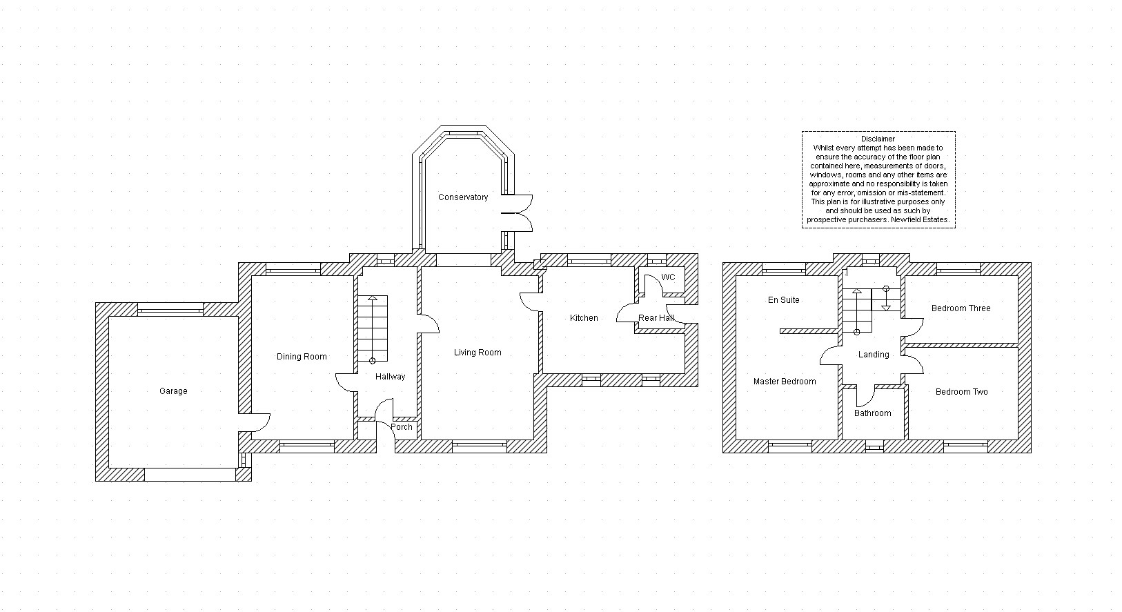
This three bedroom detached house is located on Finchale View in Pity Me, Durham. The property is being sold with the benefit of vacant possession and would make an ideal family home. The property comprises, an entrance porch, hallway, spacious living room, dining room, fitted kitchen, a conservatory and a downstairs WC. To the first floor there is a master bedroom with en suite, two further bedrooms and a bathroom. Externally there is a front garden laid to lawn and a resin driveway leading to an integral garage. To the rear of the property is a good sized garden mostly laid to lawn with two paved patio areas. Viewings are highly recommended.
Front External
To the front of the property is a garden laid to lawn a resin driveway leading to an integral garage.
Entrance Porch
With carpet flooring.
Hallway
Including carpet flooring, an under stairs storage cupboard and a double glazed window to the rear.
Living Room 4.836m x 3.341m
Living room including carpet flooring, a radiator, a double glazed window to the front and a patio door leading to the conservatory.
Dining Room 4.836m x 3.047m
Dining room with carpet flooring, a radiator, double glazed windows to the front and rear,
Kitchen 4.149m x 3.311m (Measurements to Maximum)
Kitchen including fitted wall and base units with a contrasting work surface, one and a half sink/drainer with a mixer tap, gas cooker point, an integrated dishwasher, plumbing for a washing machine, an integrated fridge/freezer, tiled splash back, laminate flooring, a radiator, two double glazed windows to the front and a double glazed window to the rear.
Conservatory 3.783m x 2.444m
With carpet flooring, a radiator, double glazed windows to the side and rear, French doors leading to the rear garden.
Downstairs WC
With a low level WC, vinyl flooring and a double glazed window to the rear.
Rear Hall
Including laminate flooring, a radiator and a door leading to the side of the property.
Stairs
With carpet flooring.
Landing
Including access via a drop down ladder to a partially boarded loft, carpet flooring and a double glazed window to the rear.
Master Bedroom 3.056m x 3.047m
Master bedroom including fitted wardrobes, carpet flooring, a radiator and a double glazed window to the front.
En Suite 2.453m x 1.720m
En suite including a shower cubicle with a mains shower, low level WC, wash hand basin, tiled flooring, partially tiled walls, a radiator and a double glazed window to the rear.
Bedroom Two 3.198m x 2.646m
Bedroom with fitted wardrobes, carpet flooring, a radiator and a double glazed window to the front.
Bedroom Three 3.307m x 2.098m
Bedroom including fitted wardrobes, carpet flooring, a radiator and a double glazed window to the rear.
Bathroom 1.822m x 1.639m
Bathroom including a bath with an electric shower above, low level WC, wash hand basin, towel heater, partially tiled walls, laminate flooring and a double glazed window to the front.
Garage 4.547m x 3.931m
Including an electric remote controlled garage door, double glazed window to the side and rear.
Rear Garden
To the rear of the property is a good size garden mostly laid to lawn with two paved patio areas.
Agent Notes
1. The property is in council tax band C.
2. The seller has informed us that the property is freehold.
3. Utilities - Mains water, sewerage, electricity and gas.
4. Ultrafast broadband available to this property (checker.ofcom.org.uk)
5. Flood Risk - Rivers and Sea - very low, Surface Water - very low (gov.uk)
6. The property has solar panels. The sellers have advised that the solar panels are owned outright.
Disclaimer
The preceding details have been sourced from the seller and the websites listed above. Verification and clarification of this information, along with any further details concerning Material Information parts A, B & C, should be sought from a legal representative or appropriate authorities. Newfield Estates cannot accept liability for any information provided.