Gray Avenue, Framwellgate Moor, Durham, DH1 5BD
Durham
£170,000
Summary
*** NO UPPER CHAIN, REAR KITCHEN EXTENSION, DOWNSTAIRS SHOWER ROOM, LARGE REAR GARDEN, POPULAR LOCATION, VIEWINGS HIGHLY RECOMMENDED ***Details
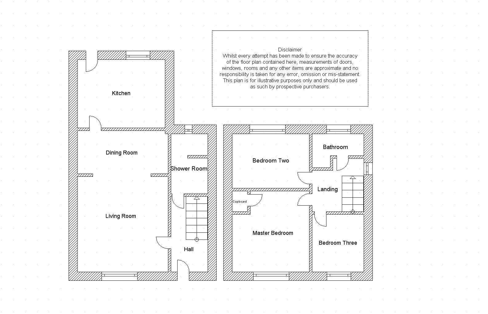
This three bedroom semi detached house is located on Gray Avenue in Framwellgate Moor, Durham. The property is being sold with the benefit of vacant possession and will appeal to a wide range of purchasers. The property comprises: an entrance hall, open plan living/dining room, modern fitted kitchen and a downstairs shower room. To the first floor there are three bedrooms and a family bathroom. Externally there is a lawn front garden and driveway offering off street parking. There is a large garden to the rear mostly laid to lawn with a paved patio.
Front External
To the front of the property is a garden laid to lawn and a driveway offering off street car parking.
Entrance Hall
Including carpet flooring and a radiator.
Living Room (Open Plan) 4.22m x 4.04m
Spacious living room including carpet flooring, a radiator and a double glazed window to the front.
Dining Room (Open Plan) 4.04m x 1.9m
Dining room including tiled flooring and a radiator.
Kitchen 3.3m x 3.1m
Modern kitchen including fitted wall and base units with a contrasting work surface, one and a half stainless steel sink/drainer with a mixer tap, an integrated electric oven, four ring gas hob, tiled flooring, tiled splash back, wall mounted boiler, an extractor fan, a radiator, a double glazed window to the rear and a door leading to the rear garden.
Downstairs Shower Room
Shower room including a shower cubicle with a mains shower, low level WC, wash hand basin, two extractor fans, chrome towel heater, tiled walls, tiled flooring, an under stairs storage cupboard and a double glazed window to the rear.
Stairs
With carpet flooring.
Landing
Including loft access, carpet flooring, a radiator and a double glazed window to the side.
Master Bedroom 3.6m x 3.48m
Master bedroom including a built in cupboard, carpet flooring, a radiator and a double glazed window to the front.
Bedroom Two 3.53m x 2.62m
Bedroom with carpet flooring, a radiator and a double glazed window to the rear.
Bedroom Three 2.62m x 2.4m
Bedroom including carpet flooring, a radiator and a double glazed window to the front.
Bathroom
Including a bath with a mains shower above, low level WC, pedestal wash hand basin, tiled walls, tiled flooring, extractor fan, chrome towel heater and a double glazed window to the rear.
Rear Garden
To the rear of the property is a large garden mostly laid to lawn with a paved patio and gated side access to the front.
Agent Notes
1. The property is in council tax band A.
2. The seller has advised us that the property is freehold.
3. Utilities - Mains water, sewerage, electricity and gas.
4. Ultrafast broadband available to this property (checker.ofcom.org.uk)
5. Flood Risk - Rivers and Sea - very low, Surface Water - very low (gov.uk)