Halton Road, Newton Hall, Durham, DH1 5YJ
Durham
£220,000
Summary
*** WELL PRESENTED THROUGHOUT, SOUTH FACING REAR GARDEN, DRIVEWAY AND GARAGE, MODERN FITTED KITCHEN/DINER, SOUGHT AFTER LOCATION, VIEWINGS HIGHLY RECOMMENDED ***Details
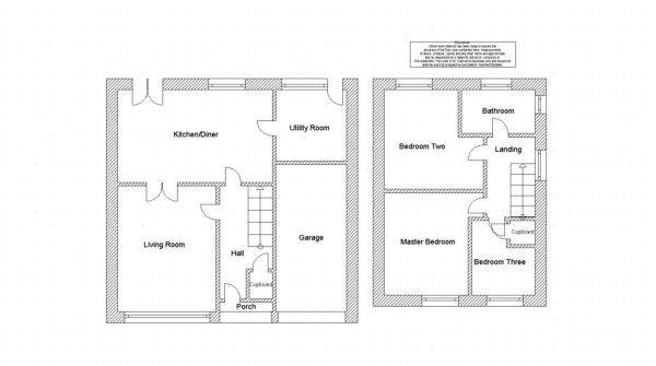
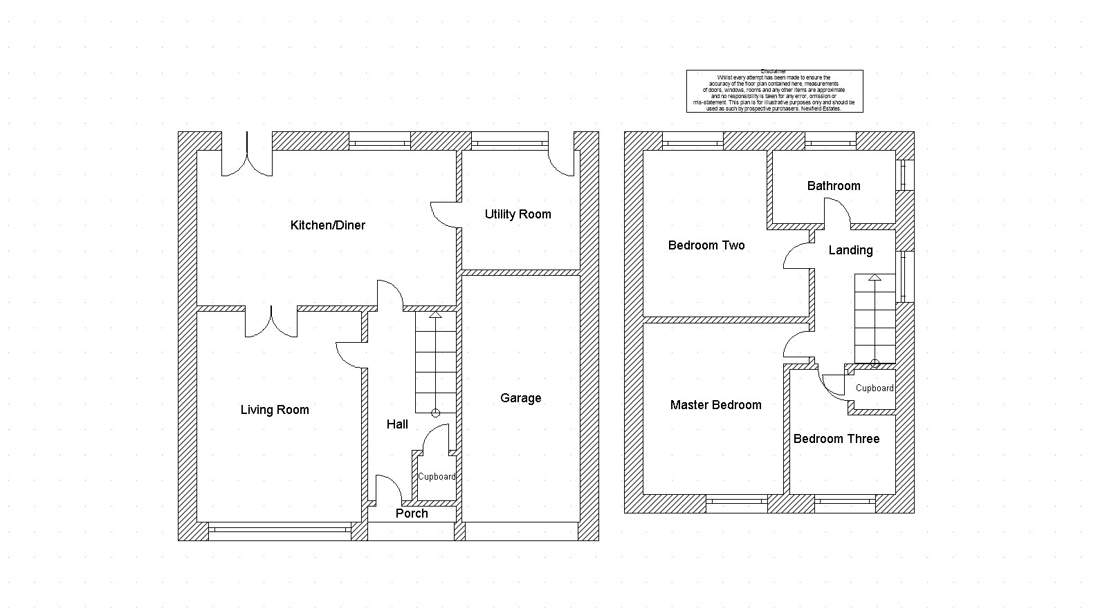
This three bedroom semi detached house is located in the Halton Road cul-de-sac in Newton Hall, Durham. The property would make an ideal family home and is well presented throughout. The property comprises: a porch, an entrance hall, spacious living room, modern fitted kitchen/diner and a utility room. To the first floor there are three bedrooms and a bathroom. Externally there is a lawn garden to the front with a drive leading to a single garage. To the rear is a South facing garden mostly laid to lawn.
Halton Road is situated on the Newton Hall Estate, which benefits from excellent schools and is located close to the Arnison Retail Park where there are excellent everyday facilities and amenities available and approximately 2 miles from Durham City Centre. It also lies within easy reach of the A(167) Highway which provides good road links to both North and South. Viewings are highly recommended.
Front External
To the front of the property is a garden mostly laid to lawn with a paved driveway leading to an attached single garage.
Porch
Entrance Hall
Including solid wood flooring, a radiator, a built in storage cupboard and an under stairs storage cupboard.
Living Room 4.427m x 3.519m
Spacious living room with solid wood flooring, a radiator and a double glazed bay window to the front.
Kitchen/Diner 5.415m x 3.237m
Modern kitchen including fitted wall and base units with a contrasting work surface, sink/drainer with a mixer tap, an integrated electric oven with four ring hob and stainless steel feature extractor fan above, vinyl flooring, a radiator, tiled splash back, breakfast bar, a double glazed window to the rear and French doors to the rear. The dining area has laminate flooring.
Utility Room 2.695m x 2.657m
Including plumbing for a washing machine, plumbing for a dishwasher, fitted wall units with a wood work top, Belfast sink with mixer tap, tiled flooring, a radiator, double glazed window to the rear and a door leading to the rear garden.
Stairs
With carpet flooring.
Landing
Including access via a drop down ladder to a partially boarded loft, carpet flooring and a double glazed window to the side.
Master Bedroom 3.594m x 3.013m
Master bedroom including laminate flooring, a radiator and a double glazed window to the front.
Bedroom Two 3.556m x 3.528m
Bedroom with laminate flooring, a radiator and a double glazed window to the rear.
Bedroom Three 2.706m x 2.329m
Bedroom including a built in cupboard, laminate flooring, a radiator and a double glazed window to the front.
Bathroom 2.658m x 1.692m
Bathroom including a bath with a mains shower above, low level WC, pedestal wash hand basin, tiled flooring, tiled walls. a chrome towel heater and double glazed windows to the side and rear.
Garage 5.083m x 2.729m
With power and light.
Rear Garden
South facing rear garden mostly laid to lawn with a paved patio, outside tap and side access to the front.
Agent Notes
1. The property is in council tax band B.
2. The seller has informed us that the property is freehold.
3. Utilities - Mains water, sewerage, electricity and gas.
4. Superfast broadband available to this property (checker.ofcom.org.uk)
5. Flood Risk - Rivers and Sea - very low, Surface Water - very low (gov.uk)
Disclaimer
The preceding details have been sourced from the seller and the websites listed above. Verification and clarification of this information, along with any further details concerning Material Information parts A, B & C, should be sought from a legal representative or appropriate authorities. Newfield Estates cannot accept liability for any information provided.