Hill Crest, Sacriston, Durham, DH7 6UU
Durham
£299,950
Summary
*** LARGE FAMILY HOME, FOUR RECEPTION ROOMS, WELL PRESENTED THROUGHOUT, SOUGHT AFTER LOCATION, LARGE DRIVEWAY AND GARAGE, VIEWINGS HIGHLY RECOMMENDED ***Details
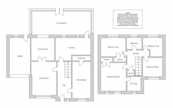
This extended four bedroom detached house is located on the popular Hill Crest in Sacriston, Durham. The property is well presented throughout and will make an ideal family home. The property comprises: an entrance hall, spacious living room, dining room, fitted kitchen, large conservatory and a study/office. To the first floor there is a master bedroom with en suite, three further bedrooms and a bathroom. Externally there is a small lawn garden to the front, a block paved double driveway and a block paved single driveway leading to a garage. To the rear is a good size garden mostly laid to lawn with a paved patio. Viewings are highly recommended.
Front External
To the front of the property is a garden laid to lawn and two block paved driveways offering off street parking for multiple vehicles. There is also an attached single garage.
Entrance Hall
Including laminate flooring, a radiator, an under stairs storage cupboard and a double glazed window to the front.
Living Room 4.52m x 3.33m
Spacious living room including an electric fire, laminate flooring, two radiators and a double glazed window to the front.
Dining Room 3.18m x 3.07m
Dining room with laminate flooring, a radiator and a patio door leading to the conservatory.
Kitchen 4.95m x 2.41m
Kitchen including fitted wall and base units with a contrasting Quartz work surface, sink with a mixer tap, a range cooker, wine fridge, integrated slimline dishwasher, an integrated washing machine, an integrated fridge, an integrated freezer, tiled flooring, an electric heater, two single glazed windows to the rear and a door leading to the conservatory.
Conservatory 7.52m x 3.33m
Large conservatory including tiled flooring with under floor heating, two radiators, double glazed windows to the side and rear. There are French doors leading to the rear garden.
Study/Office 4.45m x 2.6m
Additional reception room including a large built in cupboard, a radiator, laminate flooring and a double glazed window to the front.
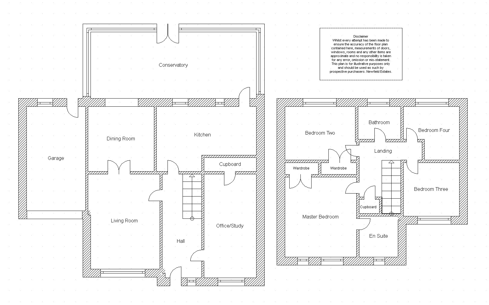
Stairs
With carpet flooring.
Landing
Including carpet flooring and a built in storage cupboard.
Master Bedroom 3.84m x 3.48m
Master bedroom including a double built in wardrobe, carpet flooring, a radiator and two double glazed windows to the front.
En Suite 2m x 1.78m
En Suite with a shower cubicle, low level WC, pedestal wash hand basin, tiled flooring, a chrome towel heater, tiled walls and a double glazed window to the front.
Bedroom Two 3.2m x 2.64m
Bedroom including a double built in wardrobe, carpet flooring, a radiator and a double glazed window to the rear.
Bedroom Three 2.72m x 2.64m
Bedroom with a built in cupboard, carpet flooring, a radiator and a double glazed window to the front.
Bedroom Four 2.74m x 2.64m (Measurements to Maximum)
'L' shaped bedroom including carpet flooring, a radiator and a double glazed window to the rear.
Bathroom 2.03m x 1.7m
Bathroom including a bath with shower above, low level WC, wash hand basin, vinyl flooring, partially tiled walls, a radiator and a double glazed window to the rear.
Garage 5.05m x 2.9m
Including a remote controlled garage door, power and light.
Rear Garden
To the rear of the property is a good size garden mostly laid to lawn with a paved patio area.
Agent Notes
1. The property is in council tax band D.
2. The seller has advised us that the property is freehold.
3. Utilities - Mains water, sewerage, electricity and gas.
4. Ultrafast broadband available to this property (checker.ofcom.org.uk)
5. Flood Risk - Rivers and Sea - very low, Surface Water - very low (gov.uk)
Disclaimer
The preceding details have been sourced from the seller and the websites listed above. Verification and clarification of this information, along with any further details concerning Material Information parts A, B & C, should be sought from a legal representative or appropriate authorities. Newfield Estates cannot accept liability for any information provided.