Holby Garth, Browney, Durham, DH7 8LE
Durham
£200,000
Summary
*** STUNNING PRESENTATION THROUGHOUT, SOUGHT AFTER LOCATION, IDEAL FOR A RANGE OF BUYERS, DOUBLE DRIVEWAY, REAR GARDEN, MASTER BEDROOM WITH EN SUITE, STYLISH KITCHEN WITH ISLAND, VIEWING HIGHLY RECOMMENDED ***Details
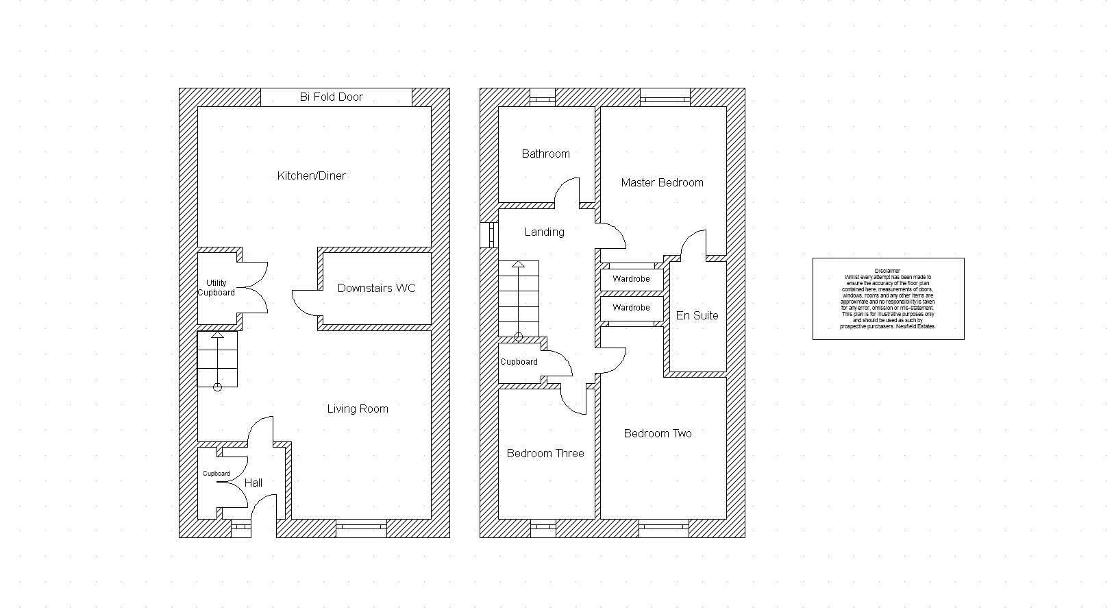
This immaculate three bedroom semi detached house is located on Holby Garth in Browney, Durham. The property has excellent presentation throughout and will appeal to a wide range of purchasers. The property comprises: an entrance hall, spacious open plan living room, stunning modern fitted kitchen/diner, utility cupboard and a downstairs WC. To the first floor there is a master bedroom with en suite, two further bedrooms and a stylish bathroom. Externally there is a double driveway to the front. The landscaped rear garden is mostly laid to lawn with a paved patio, decked terrace and a shed. Viewings are highly recommended.
Front External
To the front of the property is a double driveway offering off street parking for two vehicles.
Entrance Hall
Including a built in storage cupboard, tiled flooring and a radiator.
Living Room (Open Plan) 3.979m x 3.011m
Spacious living room including tiled flooring, a radiator and a double glazed window to the front.
Kitchen/Diner 4.970m x 3.011m
Stunning kitchen including fitted wall and base units with a Quartz work surface, one and a half sink with a mixer tap, an island with seating, an integrated oven, a built in microwave, a warming drawer, an induction hob, extractor fan, an integrated fridge/freezer, an integrated dishwasher, tiled flooring, a radiator and a Bi-Fold door leading to the rear garden.
Utility Cupboard
With fitted base units, work surface, plumbing for a washing machine and tiled flooring.
Downstairs WC 2.379m x 1.537m
Downstairs WC including a low level WC, wash hand basin, partially tiled walls, tiled flooring, an extractor fan and a radiator.
Stairs
With carpet flooring.
Landing
Including access via a drop down ladder to a partially boarded loft, a built in cupboard housing the boiler, carpet flooring, a radiator and a double glazed window to the side.
Master Bedroom 3.180m x 2.739m
Master bedroom including a built in double wardrobe, carpet flooring, a radiator and a double glazed window to the rear.
En Suite 2.297m x 1.377m
En suite including a shower cubicle with a mains shower, low level WC, wash hand basin, partially tiled walls, tiled flooring, a chrome towel heater and an extractor fan.
Bedroom Two 3.043m x 2.739m
Bedroom with a built in double wardrobe, carpet flooring, a radiator and a double glazed window to the front.
Bedroom Three 2.819m x 2.141m
Bedroom including carpet flooring, a radiator and a double glazed window to the front.
Bathroom 2.140m x 2.140m
Stylish bathroom including a bath with a mains shower above, low level WC, wash hand basin, partially tiled walls, tiled flooring, a chrome towel heater, an extractor fan and a double glazed window to the rear.
Rear Garden
The landscaped rear garden is mainly laid to lawn with a paved patio, decked terrace and a shed. There is an outside tap and side access to the front of the property.
Agent Notes
1. The property is in council tax band C.
2. The seller has informed us that the property is freehold.
3. Utilities - Mains water, sewerage, electricity and gas.
4. Ultrafast broadband available to this property (checker.ofcom.org.uk)
5. Flood Risk - Rivers and Sea - very low, Surface Water - very low (gov.uk)
Disclaimer
The preceding details have been sourced from the seller and the websites listed above. Verification and clarification of this information, along with any further details concerning Material Information parts A, B & C, should be sought from a legal representative or appropriate authorities. Newfield Estates cannot accept liability for any information provided.