Kirkham Road, Newton Hall, Durham, DH1 5LJ
Durham
£140,000 Offers Over
Summary
*** NO UPPER CHAIN, DOWNSTAIRS WC, POPULAR LOCATION, IDEAL FOR A RANGE OF BUYERS, KITCHEN/DINER, FRONT AND REAR GARDENS, MUST BE VIEWED ***Details
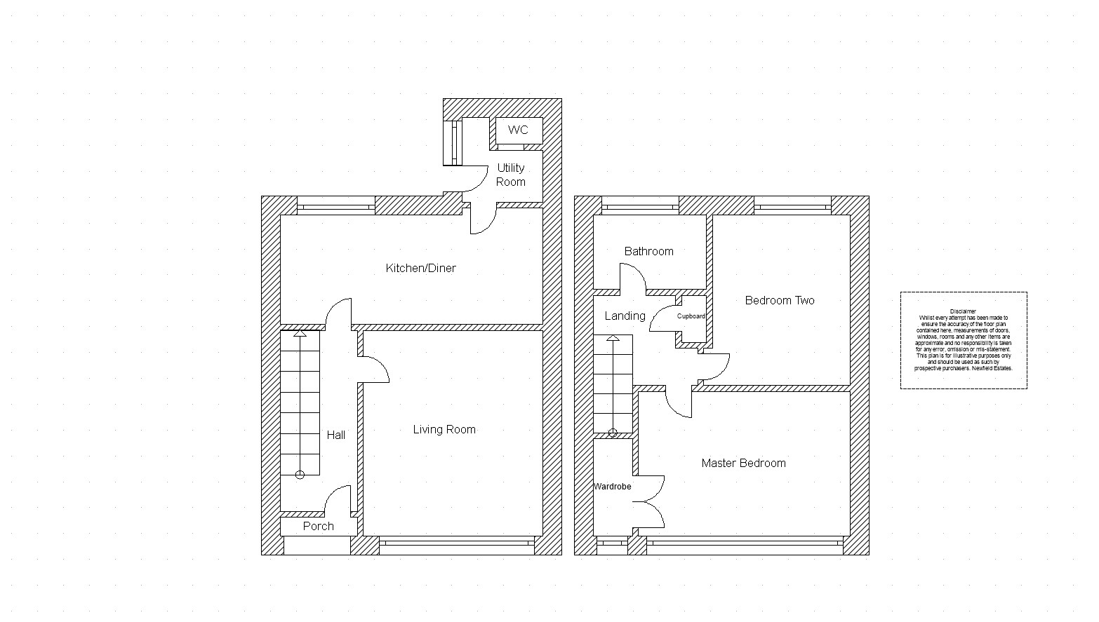
This two bedroom semi detached house is located on Kirkham Road in Newton Hall, Durham. The property is being sold with the benefit of vacant possession and will appeal to a range of purchasers. The property comprises: an entrance porch, hallway, spacious living room, fitted kitchen/diner, utility room and a downstairs WC. To the first floor there is a large master bedroom, a second double bedroom and a stylish family bathroom. Externally there are low maintenance gardens to the front and rear. Viewings are highly recommended.
Front External
To the front of the property is a fenced low maintenance garden mostly paved.
Porch
Entrance Hall
Including carpet flooring, a radiator and an under stairs storage cupboard.
Living Room 4.236m x 3.409m
Spacious living room including a feature electric fire, carpet flooring, a radiator and a double glazed window to the front.
Kitchen/Diner 5.407m x 2.400m
Kitchen including fitted wall and base units with a contrasting work surface, stainless steel sink/drainer with a mixer tap, integrated electric oven with four ring electric hob and stainless steel extractor fan above, plumbing for a washing machine, a radiator, laminate flooring, tiled splash back and a double glazed window to the rear.
Utility Room
Including a radiator, space for a fridge/freezer, space for a tumble dryer, a double glazed window to the side and a door leading to the rear garden.
Downstairs WC
Including a low level WC with wash hand basin above, a radiator and a double glazed window to the rear.
Stairs
With carpet flooring.
Landing
Including a built in storage cupboard, loft access and carpet flooring.
Master Bedroom 4.335m x 3.127m
Spacious master bedroom including a built wardrobe, carpet flooring, a radiator and a double glazed window to the front.
Bedroom Two 3.609m x 2.925m
Double bedroom with carpet flooring, a radiator and a double glazed window to the rear.
Bathroom 2.415m x 1.675m
Stylish bathroom including a bath with mains shower above, low level WC, wash hand basin, vinyl flooring, a chrome towel heater and double glazed window to the rear.
Rear Garden
To the rear of the property is a low maintenance garden with gated side access to the front.
Agent Notes
1. The property is in council tax band A.
2. The seller has advised that the property is freehold.
3. Utilities - Mains water, sewerage, electricity and gas.
4. Ultrafast broadband available to this property (checker.ofcom.org.uk)
5. Flood Risk - Rivers and Sea - very low, Surface Water - very low (gov.uk)
Disclaimer
The preceding details have been sourced from the seller and the websites listed above. Verification and clarification of this information, along with any further details concerning Material Information parts A, B & C, should be sought from a legal representative or appropriate authorities. Newfield Estates cannot accept liability for any information provided.