Park View, Langley Moor, Durham, DH7 8JU
Durham
£130,000
Summary
*** NO UPPER CHAIN, BLOCK PAVED DRIVEWAY, REAR GARDEN, IDEAL FOR A RANGE OF BUYERS, DOWNSTAIRS WC, STUNNING VIEWS TO THE REAR, VIEWINGS HIGHLY RECOMMENDED ***Details
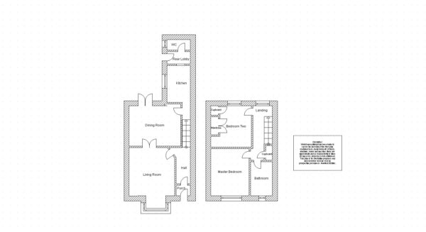
This two bedroom mid terraced house is located on Park View in Langley Moor, Durham. The property is being sold with no upper chain and will appeal to a wide range of purchasers. The property comprises: an entrance porch, hall, spacious living room, dining room, fitted kitchen and a downstairs WC. To the first floor there are two double bedrooms and a bathroom. Externally there is a small garden to the front and a yard to the rear. The property also benefits from having a block paved driveway and a rear garden located across the rear lane. Viewings are highly recommended.
Front External
To the front of the property is a small garden.
Porch
Hallway
With carpet flooring and a radiator.
Living Room 4.65m x 3.53m (Measurement into Bay)
Spacious living room including carpet flooring, two radiators and a double glazed bay window to the front.
Dining Room 3.962m x 3.155m
Dining room with laminate flooring, a radiator and French doors to the rear yard.
Kitchen 2.805m x 2.064m
Kitchen including fitted wall and base units with a contrasting work surface, one and a half stainless steel sink/drainer with a mixer tap, an integrated electric oven, four ring gas hob, extractor fan, plumbing for a washing machine, vinyl flooring, a radiator and a double glazed window to the side.
Rear Lobby
With vinyl flooring, a built in cupboard and a door leading to the rear yard.
Downstairs WC
Including a low level WC, vinyl flooring, a radiator and a double glazed window to the side.
Stairs
With carpet flooring.
Landing
Including loft access, a built in storage cupboard, carpet flooring and a double glazed window to the rear.
Master Bedroom 3.669m x 3.000m
Master bedroom including carpet flooring, a radiator and a double glazed window to the front.
Bedroom Two 3.330m x 2.724m
Bedroom with a built in wardrobe, a built in cupboard housing the boiler, carpet flooring, a radiator and a double glazed window to the rear.
Bathroom 2.718m x 1.826m
Bathroom including a bath with an electric shower above, low level WC, pedestal wash hand basin, vinyl flooring, a radiator, partially tiled walls and a double glazed window to the rear.
Rear Yard
Rear yard with a decked terrace.
Rear Garden and Driveway
Located across the rear lane, there is a block paved driveway offering off street parking and a garden mostly laid to lawn.
Agent Notes
1. The property is in council tax band A.
2. The seller has informed us that the property is freehold.
3. Utilities - Mains water, sewerage, electricity and gas.
4. Ultrafast broadband available to this property (checker.ofcom.org.uk)
5. Flood Risk - Rivers and Sea - very low, Surface Water - very low (gov.uk)
Disclaimer
The preceding details have been sourced from the seller and the websites listed above. Verification and clarification of this information, along with any further details concerning Material Information parts A, B & C, should be sought from a legal representative or appropriate authorities. Newfield Estates cannot accept liability for any information provided.