St Aidans Avenue, Framwellgate Moor, Durham, DH1 5BA
Durham
£170,000
Summary
*** NO UPPER CHAIN, WELL PRESENTED THROUGHOUT, SOUTH FACING REAR GARDEN, IDEAL FOR A RANGE OF BUYERS ***Details
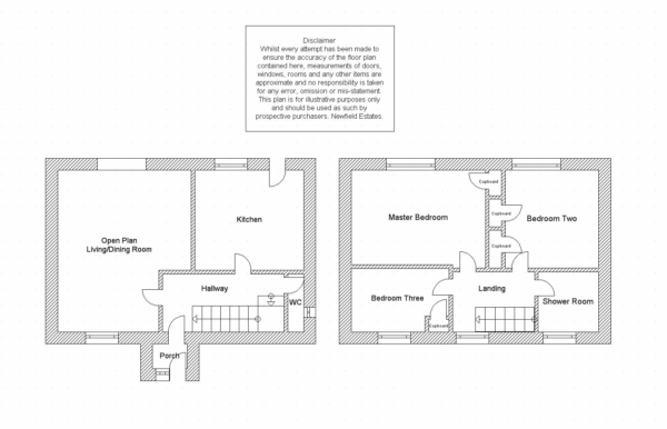
This three bedroom semi detached house is located on St Aidans Avenue in Framwellgate Moor, Durham. The property is well presented throughout and is being sold with vacant possession. The property comprises: an entrance porch, hallway, spacious open plan living/dining room, modern fitted kitchen and a downstairs WC. To the first floor there are three bedrooms and a stylish bathroom. Externally there is a wall enclosed garden to the front and a south facing garden mostly laid to lawn to the rear. Viewings are highly recommended.
Front External
To the front of the property is a wall enclosed low maintenance garden.
Entrance Porch
With carpet flooring and a double glazed window to the front.
Hallway
Including laminate flooring, a radiator an under stairs storage cupboard and a double glazed window to the front.
Open Plan Living/Dining Room 5.320m x 4.316m
Open plan living/dining room including laminate flooring, a radiator, a double glazed window to the front and French doors leading to the rear garden.
Kitchen 3.588m x 3.303m
Modern kitchen including fitted wall and base units with a contrasting work surface, stainless steel sink/drainer with a mixer tap, an integrated oven, four ring electric hob, extractor fan, tiled splash back, tiled flooring, a radiator, a double glazed window to the rear and a door leading to the rear garden.
Downstairs WC
Including a low level WC, wash hand basin, tiled walls, tiled flooring and a double glazed window to the side.
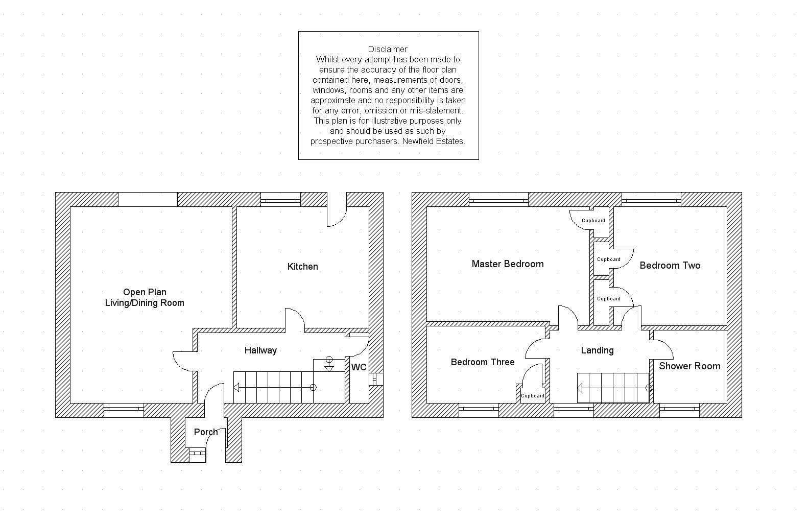
Stairs
With carpet flooring.
Landing
With loft access, carpet flooring and a double glazed window to the front.
Master Bedroom 3.619m x 3.129m
Master bedroom with extensive fitted wardrobes, a built in cupboard, laminate flooring, a radiator and a double glazed window to the rear.
Bedroom Two 3.242m x 3.096m
Bedroom including two built in cupboards, laminate flooring, a radiator and a double glazed window to the rear.
Bedroom Three 3.242m x 2.110m
Bedroom with a built in cupboard, laminate flooring, a radiator and a double glazed window to the front.
Bathroom 2.121m x 1.902m
Stylish bathroom including a bath with a mains shower above, low level WC, bidet, pedestal wash hand basin, chrome towel heater, tiled flooring, partially tiled walls and a double glazed window to the front.
Rear Garden
To the rear of the property is a South facing rear garden mostly laid to lawn with a patio, decking and two outside storage sheds.
Agent Notes
1. The property is in council tax band A.
2. The seller has advised us that the property is freehold.
3. Utilities - Mains water, sewerage, electricity and gas.
4. Ultrafast broadband available to this property (checker.ofcom.org.uk)
5. Flood Risk - Rivers and Sea - very low, Surface Water - very low (gov.uk)
Disclaimer
The preceding details have been sourced from the seller and the websites listed above. Verification and clarification of this information, along with any further details concerning Material Information parts A, B & C, should be sought from a legal representative or appropriate authorities. Newfield Estates cannot accept liability for any information provided.