St Aidans Avenue, Framwellgate Moor, Durham, DH1 5BB
Durham
£185,000
Summary
*** NO UPPER CHAIN, LARGE SOUTH FACING REAR GARDEN, DETACHED GARAGE, CONSERVATORY, DRIVEWAY, DOWNSTAIRS WC, WELL PRESENTED, VIEWINGS HIGHLY RECOMMENDED ***Details
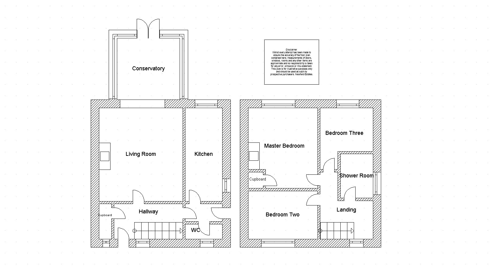
This three bedroom semi detached house is located on St Aidans Avenue in Framwellgate Moor, Durham. The property is being sold with no upper chain and is well presented throughout. The property comprises: an entrance hallway, spacious living room, modern fitted kitchen, conservatory and a downstairs WC. To the first floor there are three bedrooms and a shower room. Externally there is a block paved driveway leading to a detached garage. To the rear is a large South facing garden with lawn, raised planters, a covered seating area and a greenhouse. Viewings are highly recommended.
Front External
To the front of the property is a paved garden and a block paved driveway leading to a detached garage.
Entrance Hall
With laminate flooring, a built in cupboard, a radiator and a double glazed window to the front.
Living Room 4.397m x 3.969m
Spacious living room including an electric fire, laminate flooring, a radiator and a patio door leading to the conservatory.
Kitchen 4.397m x 1.895m
Modern kitchen including fitted wall and base units with a solid wood work surface, sink/drainer with a mixer tap, gas cooker point, extractor fan, plumbing for a washing machine, tiled splash back, laminate flooring, a radiator, double glazed windows to the side and rear.
Downstairs WC
With a low level WC, wash hand basin, vinyl flooring, a radiator, partially tiled walls and a double glazed window to the front.
Conservatory 3.100m x 2.955m
Including laminate flooring, a radiator, double glazed windows to the side and rear. French doors lead to the rear garden.
Stairs
With carpet flooring.
Landing
Including loft access, carpet flooring, a radiator and a double glazed window to the front.
Master Bedroom 3.866m x 3.325m
Master bedroom including a built in cupboard housing the combi boiler, carpet flooring, a radiator and a double glazed window to the rear.
Bedroom Two 3.325m x 2.383m
Bedroom with carpet flooring, a radiator and a double glazed window to the front.
Bedroom Three 2.6m x 2.18m
Bedroom including carpet flooring, a radiator and a double glazed window to the rear.
Shower Room 2.079m x 1.690m
Including a shower cubicle with a mains shower, low level WC, pedestal wash hand basin, vinyl flooring, towel heater and a double glazed window to the side.
Garage 5.795m x 3.509m
Detached garage with power and light.
Rear Garden
Large South facing rear garden including lawn, raised planters and a greenhouse. There is a covered seating area and gated side access to the front.
Agent Notes
1. The property is in council tax band A.
2. Utilities - Mains water, sewerage, electricity and gas.
3. Ultrafast broadband available to this property (checker.ofcom.org.uk)
4. Flood Risk - Rivers and Sea - very low, Surface Water - very low (gov.uk)
5. There is an ongoing probate application.
Disclaimer
The preceding details have been sourced from the seller and the websites listed above. Verification and clarification of this information, along with any further details concerning Material Information parts A, B & C, should be sought from a legal representative or appropriate authorities. Newfield Estates cannot accept liability for any information provided.