Whinney Hill, Durham, County Durham, DH1 3BD
County Durham
£300,000
Summary
*** STUNNING VIEW OF DURHAM CATHEDRAL, LARGE REAR GARDEN, WELL PRESENTED, IDEAL LOCATION CLOSE TO CITY CENTRE AND UNIVERSITY, MODERN FITTED KITCHEN/DINER, VIEWINGS HIGHLY RECOMMENDED ***Details
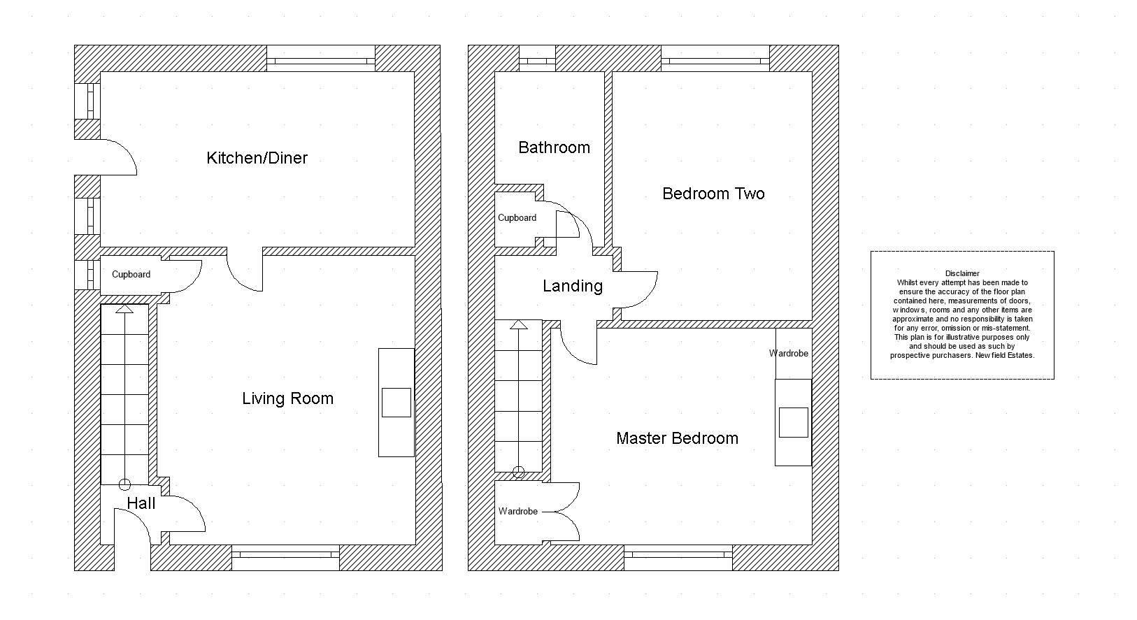
This two bedroom end terraced house is located on the popular Whinney Hill in Durham. The property is well presented and has a stunning view of Durham Cathedral. The property comprises: an entrance hall, spacious living room and a modern fitted kitchen/diner. To the first floor there are two double bedrooms and a family bathroom. Externally there is a front garden laid to lawn. To the rear is a large garden laid to lawn with gated access to the front and a shed. Viewings are highly recommended.
Front External
To the front of the property is a garden laid to lawn.
Entrance Hall
With carpet flooring and a radiator.
Living Room 4.248m x 3.628m
Spacious living room including laminate flooring, a radiator, a built in storage cupboard and a double glazed window to the front.
Kitchen/Diner 4.847m x 2.672m
Modern kitchen including fitted wall and base units with a contrasting work surface, stainless steel sink/drainer with a mixer tap, electric cooker point, plumbing for a washing machine, laminate flooring, tiled splash back, a radiator, two double glazed windows to the side and a double glazed window to the rear. There is a door leading to the rear garden.
Stairs
With carpet flooring.
Landing
Including loft access, carpet flooring and a double glazed window to the side.
Master Bedroom 3.860m x 3.235m
Master bedroom including two built in double wardrobes, carpet flooring, a radiator and a double glazed window to the front.
Bedroom Two 3.722m x 3.005m
Bedroom with carpet flooring, a radiator and a double glazed window to the rear.
Bathroom 2.700m x 1.760m
Bathroom including a bath with shower above, low level WC, pedestal wash hand basin, partially tiled walls, vinyl flooring, a built in cupboard housing the boiler and a double glazed window to the rear.
Rear Garden
To the rear of the property is a large garden mostly laid to lawn, a shed, an outside tap and gated access to the front.
Agent Notes
1. The property is in council tax band B.
2. The seller has informed us that the property is freehold.
3. Utilities - Mains water, sewerage, electricity and gas.
4. Ultrafast broadband available to this property (checker.ofcom.org.uk)
5. Flood Risk - Rivers and Sea - very low, Surface Water - very low (gov.uk)
Disclaimer
The preceding details have been sourced from the seller and the websites listed above. Verification and clarification of this information, along with any further details concerning Material Information parts A, B & C, should be sought from a legal representative or appropriate authorities. Newfield Estates cannot accept liability for any information provided.