Witton Avenue, Sacriston, Durham, DH7 6HZ
Durham
£120,000
Summary
*** NO UPPER CHAIN, IDEAL FOR A RANGE OF BUYERS, FRONT AND REAR GARDENS, POPULAR LOCATION, VIEWINGS RECOMMENDED ***Details
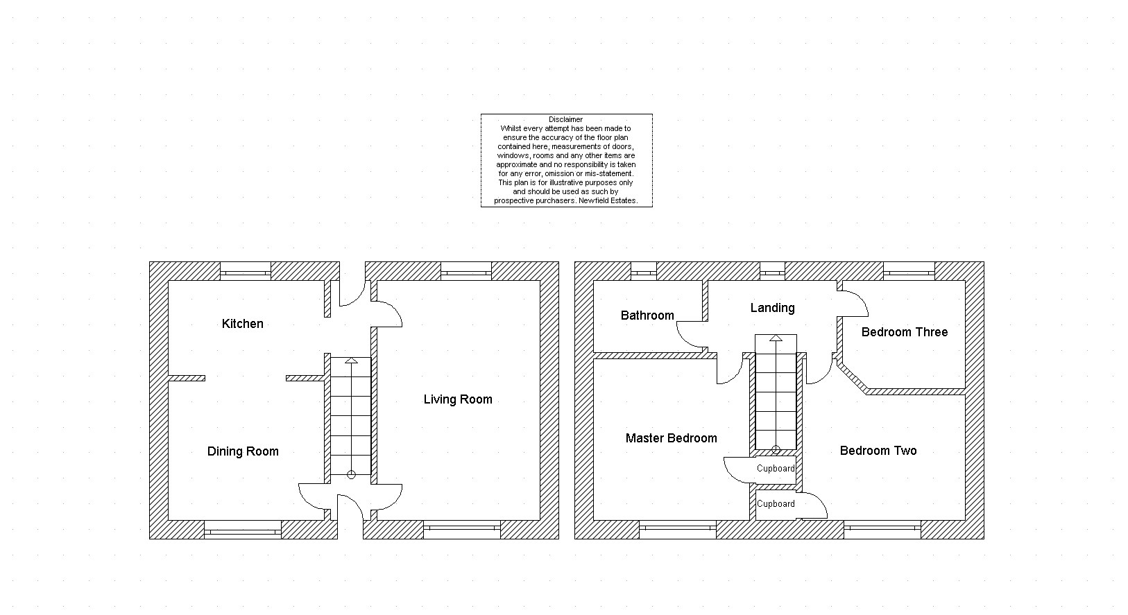
This three bedroom semi detached house is located on Witton Avenue in Sacriston, Durham. The property is being sold with no upper chain and will appeal to a range of purchasers. The property comprises: entrance hall, spacious living room and an open plan modern kitchen/diner. To the first floor there are three bedrooms and a family bathroom. Externally there are gardens to the front and rear. Viewings are recommended so please call us on 0191 384 3330.
Front External
To the front of the property is a garden laid to lawn.
Hall
With laminate flooring.
Living Room 5.203m x 3.426m
Spacious living room including a wood burning stove, carpet flooring, a radiator, double glazed windows to the front and rear.
Dining Room (Open Plan) 3.292m x 2.962m
Open plan dining room with laminate flooring, a radiator and a double glazed window to the front.
Kitchen (Open Plan) 3.292m x 2.098m
Modern kitchen including fitted wall and base units with a contrasting work surface, stainless steel sink/drainer with a mixer tap, integrated oven, four ring hob, extractor fan, plumbing for a washing machine, tiled splash back, laminate flooring and a double glazed window to the rear.
Stairs
With carpet flooring.
Landing
Including loft access, carpet flooring, a radiator and a double glazed window to the rear.
Master Bedroom 3.407m x 3.292m
Spacious bedroom including a built in cupboard, carpet flooring, a radiator and a double glazed window to the front.
Bedroom Two 3.432m x 2.703m
Bedroom with a built in cupboard, carpet flooring, a radiator and a double glazed window to the front.
Bedroom Three 2.563m x 2.412m
Bedroom including carpet flooring, a radiator and a double glazed window to the rear.
Bathroom 2.364m x 1.682m
Bathroom including a bath with a mains shower above, low level WC, wash hand basin, chrome towel heater, vinyl flooring and a double glazed window to the rear.
Rear Garden
To the rear of the property is a garden with a patio, decking and side access to the front.
Agent Notes
1. The property is in council tax band A.
2. The seller has advised us that the property is freehold.
3. Utilities - Mains water, sewerage, electricity and gas.
4. Superfast broadband available to this property (checker.ofcom.org.uk)
5. Flood Risk - Rivers and Sea - very low, Surface Water - very low (gov.uk)
Disclaimer
The preceding details have been sourced from the seller and the websites listed above. Verification and clarification of this information, along with any further details concerning Material Information parts A, B & C, should be sought from a legal representative or appropriate authorities. Newfield Estates cannot accept liability for any information provided.