Wolsingham Drive, Newton Hall, Durham, DH1 5XH
Durham
£230,000
Summary
*** LINK DETACHED HOUSE, WELL PRESENTED, POPULAR LOCATION, DRIVEWAY AND GARAGE, FRONT AND REAR GARDENS ***Details
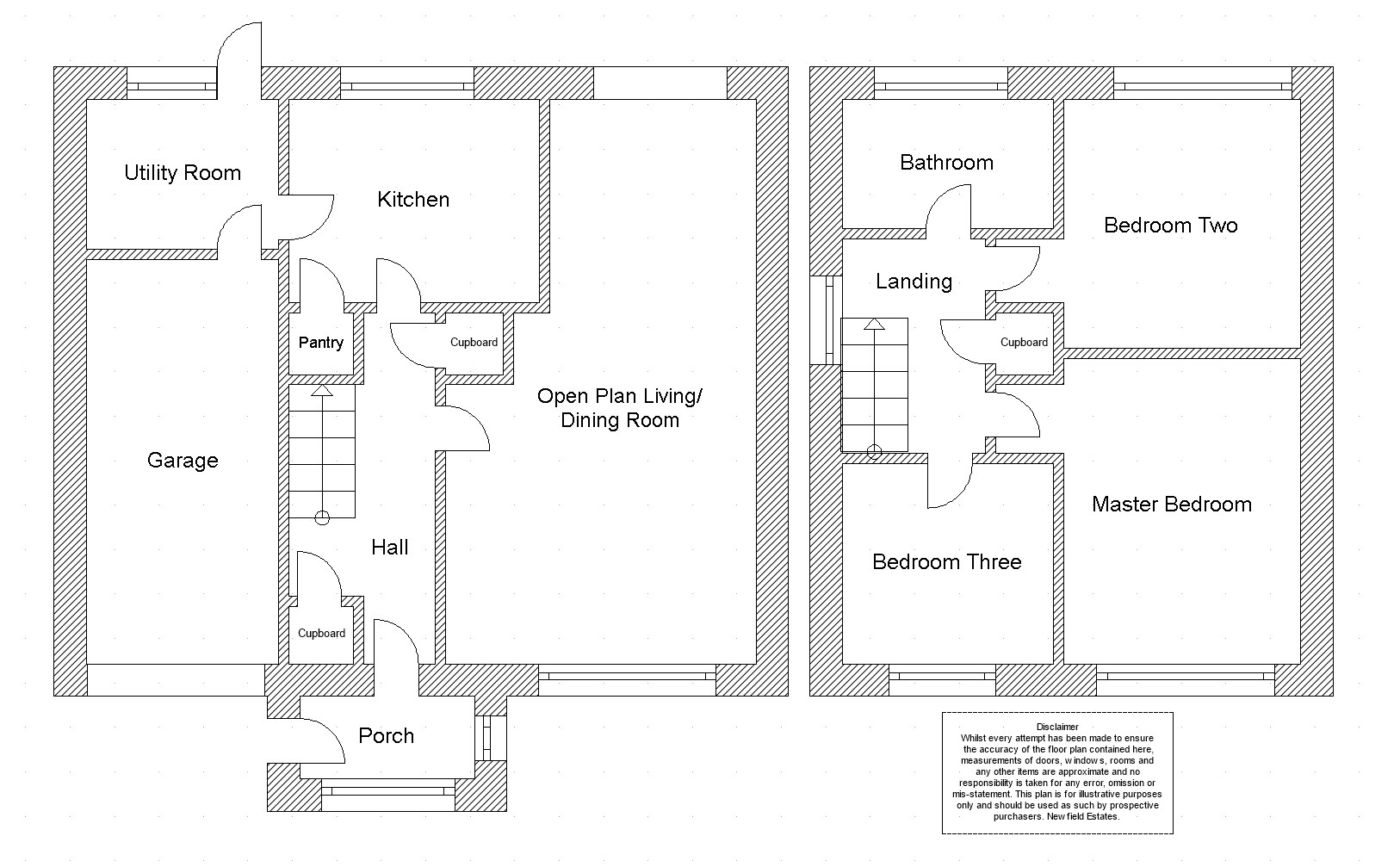
This three bedroom link detached house is located on Wolsingham Drive in Newton Hall, Durham. The property will appeal to a wide range of potential purchasers. The property comprises: an entrance porch, hallway, open plan living/dining room, kitchen and a utility room. To the first floor there are three bedrooms and a bathroom. Externally there is a front garden laid to lawn and a driveway leading to an integral garage. To the rear is an enclosed garden mostly laid to lawn. Viewings are highly recommended so please call us on 0191 384 3330.
Front External
To the front of the property is a garden laid to lawn and a driveway leading to an integral garage.
Entrance Porch
With carpet flooring and a double glazed window to the front.
Hallway
Including two built in cupboards, an under stairs storage cupboard and carpet flooring.
Living Room (Open Plan) 4.185m x 3.744m
Open plan living room including carpet flooring, a radiator and a double glazed window to the front.
Dining Room (Open Plan) 2.561m x 2.531m
Dining room with carpet flooring, a radiator and a patio door to the rear.
Kitchen 2.932m x 2.531m
Kitchen including fitted wall and base units with a contrasting work surface, stainless steel sink/drainer with a mixer tap, an integrated oven, gas hob, extractor fan, tiled splash back, a built in pantry, vinyl flooring, a radiator and a double glazed window to the rear.
Utility Room 2.339m x 1.928m
Including plumbing for a washing machine, plumbing for a dishwasher, wall mounted boiler, vinyl flooring, a double glazed window to the rear and a door leading to the rear garden.
Stairs
With carpet flooring.
Landing
With loft access, carpet flooring and a double glazed window to the side.
Master Bedroom 3.854m x 2.905m
Master bedroom including carpet flooring, a radiator and a double glazed window to the front.
Bedroom Two 3.037m x 2.924m
Bedroom with carpet flooring, a radiator and a double glazed window to the rear.
Bedroom Three 2.618m x 2.494m
Bedroom including carpet flooring, a radiator and a double glazed window to the front.
Bathroom 2.614m x 1.699m
Bathroom including a bath with an electric shower above, low level WC, pedestal wash hand basin, partially tiled walls, an extractor fan, a radiator and a double glazed window to the rear.
Rear Garden
To the rear of the property is a garden mostly laid to lawn.
Garage
Agent Notes
1. The property is in council tax band C.
2. The seller has advised us that the property is freehold.
3. Utilities - Mains water, sewerage, electricity and gas.
4. Ultrafast broadband available to this property (checker.ofcom.org.uk)
5. Flood Risk - Rivers and Sea - very low, Surface Water - very low (gov.uk)
Disclaimer
The preceding details have been sourced from the seller and the websites listed above. Verification and clarification of this information, along with any further details concerning Material Information parts A, B & C, should be sought from a legal representative or appropriate authorities. Newfield Estates cannot accept liability for any information provided.