Woodward Way, Aykley Heads, Durham, DH1 5ZH
Durham
£275,000
Summary
*** NO UPPER CHAIN, WELL PRESENTED THROUGHOUT, WEST FACING REAR GARDEN, GARDEN AND DRIVEWAY FOR TWO VEHICLES, SOUGHT AFTER LOCATION, VIEWINGS HIGHLY RECOMMENDED ***Details
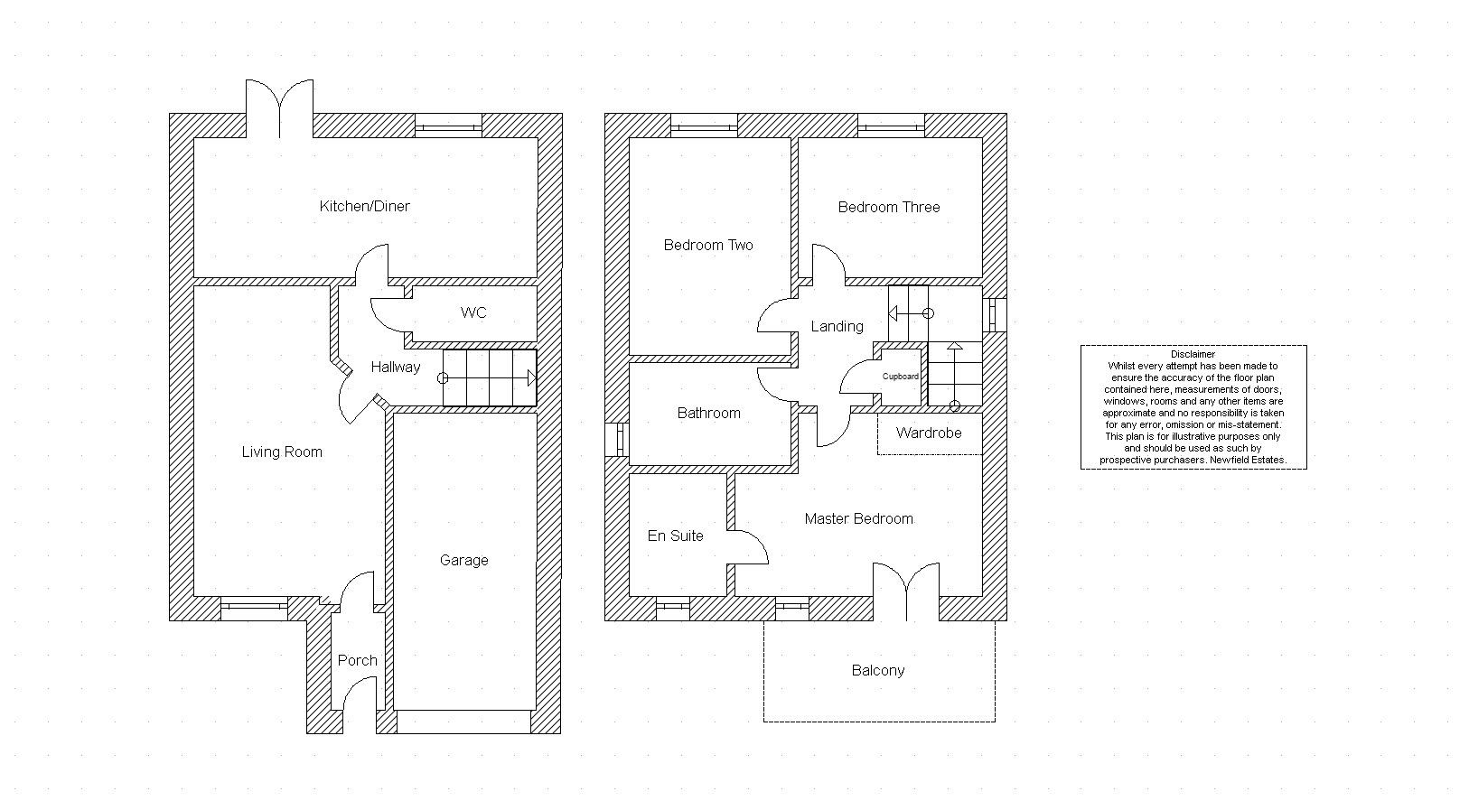
This three bedroom semi detached townhouse is located on the sought after Woodward Way in Aykley Heads, Durham. The property is well presented throughout and is being sold with the benefit of no upper chain. The property comprises: an entrance hallway, modern fitted kitchen/diner, snug/office and a downstairs WC/ To the first floor is a living room with a small balcony overlooking the green to the front of the property and a master bedroom with an en suite. To the second floor are two further bedrooms and a stylish bathrooms. Externally there is a West facing rear garden with gated access leading to a driveway with parking for two vehicles and a single garage. Viewings are highly recommended.
Front External
To the front of the property is a paved garden and planted border with views over the communal green. There is gated side access to the rear garden.
Entrance Hall
With laminate flooring and a radiator.
Downstairs WC
Including a low level WC, wash hand basin, extractor fan, laminate flooring and a radiator.
Kitchen/Diner 3.995m x 3.807m
Modern kitchen including fitted wall and base units with a contrasting work surface, one and a half stainless steel sink/drainer with a mixer tap, an integrated oven, four ring gas hob, an extractor fan, an integrated fridge/freezer, an integrated washing machine, an integrated dishwasher, an under stairs cupboard, a radiator, laminate flooring, a double glazed window to the rear and a door leading to the rear garden.
Study/Office 3.011m x 2.484m
Study/office including carpet flooring, a radiator and a double glazed window to the front.
Stairs to First Floor
With carpet flooring.
First Floor Landing
Including carpet flooring.
Living Room 3.995m x 2.813m
Living room including carpet flooring, a radiator, a double glazed window to the front and French doors leading to a balcony.
Master Bedroom 3.145m x 2.881m
Master bedroom including carpet flooring, a radiator and two double glazed windows to the rear.
En Suite
En suite including a shower cubicle with a mains shower, low level WC, pedestal wash hand basin, an extractor fan, vinyl flooring and a radiator.
Stairs to Second Floor
With carpet flooring.
Second Floor Landing
Including a built in cupboard, loft access and carpet flooring.
Bedroom Two 3.995m x 2.924m
Bedroom including carpet flooring, a radiator and two double glazed windows to the rear.
Bedroom Three 3.995m x 3.117m
Bedroom with carpet flooring, a radiator and two double glazed windows to the front.
Bathroom 1.897m x 1.683m
Family bathroom including a bath with an electric shower above, a low level WC, pedestal wash hand basin, partially tiled walls, tiled flooring, an extractor fan and a chrome towel heater.
Rear Garden
To the rear of the property is a West facing garden mostly laid to lawn with a patio.
Garage and Driveway
Located to the rear of the property is a single garage with a driveway offering off street parking for two vehicles.
Agent Notes
1. The property is in council tax band D.
2. The seller has advised us that the property is freehold.
3. Utilities - Mains water, sewerage, electricity and gas.
4. Ultrafast broadband available to this property (checker.ofcom.org.uk)
5. Flood Risk - Rivers and Sea - very low, Surface Water - very low (gov.uk)
6. There is a charge of £224.02 per annum (2026) for the maintenance of the communal areas.
Disclaimer
The preceding details have been sourced from the seller and the websites listed above. Verification and clarification of this information, along with any further details concerning Material Information parts A, B & C, should be sought from a legal representative or appropriate authorities. Newfield Estates cannot accept liability for any information provided.