York Crescent, Newton Hall, Durham, DH1 5PT
Durham
£235,000
Summary
*** EXTENDED FLOOR PLAN, THREE RECEPTION ROOMS, WELL PRESENTED THROUGHOUT, MODERN FITTED KITCHEN, DOUBLE DRIVEWAY, WEST FACING REAR GARDEN, STYLISH SHOWER ROOM, VIEWINGS HIGHLY RECOMMENDED ***Details
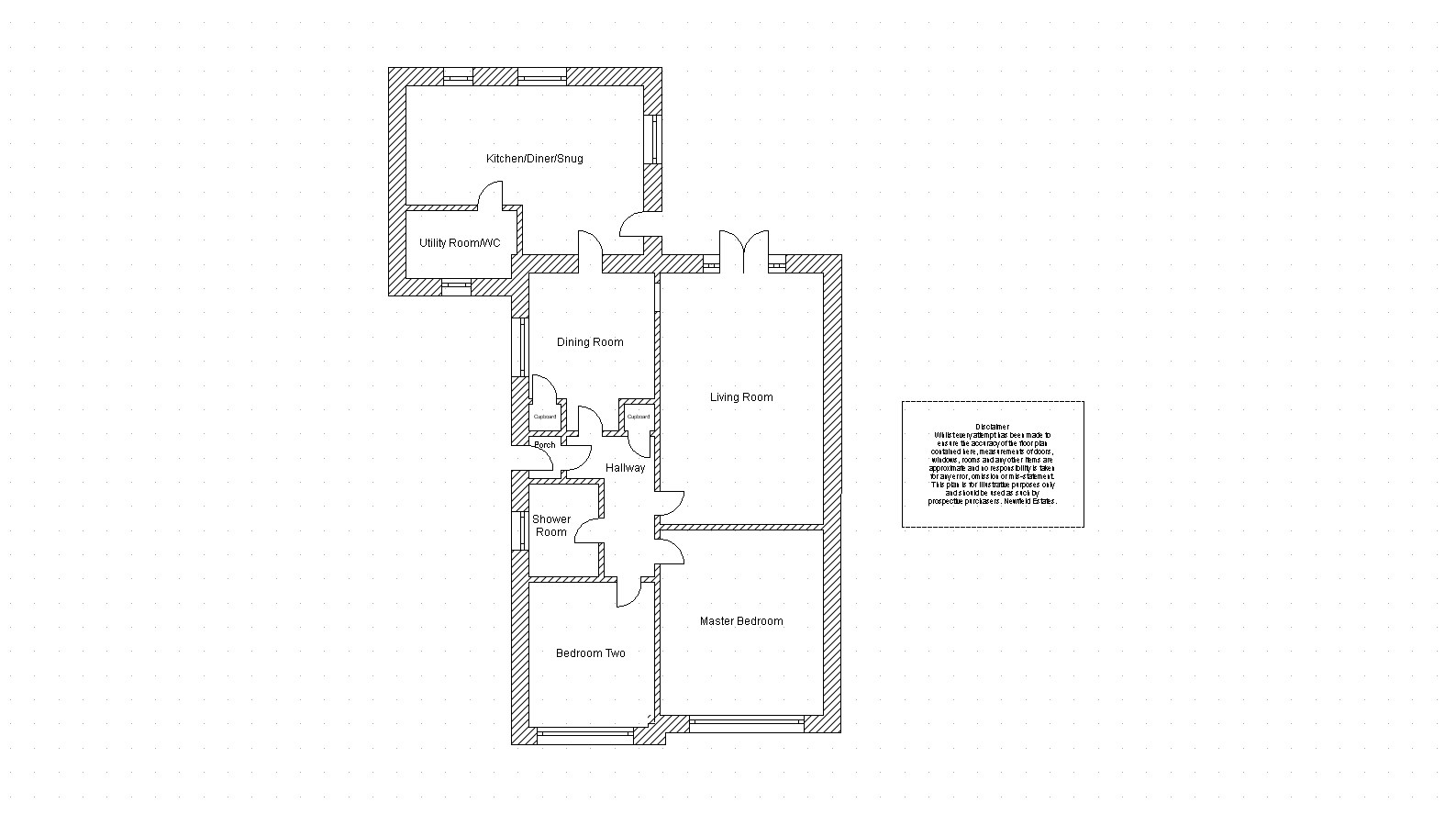
This extended two bedroom semi detached bungalow is located on York Crescent in Newton Hall, Durham. The property is well presented throughout and benefits from three reception rooms. The property comprises: a porch, an entrance hall, spacious living room, modern fitted kitchen/dining/family room, separate dining room, two bedrooms and a stylish shower room. Externally there is a double driveway to the front. To the rear is a West facing garden mostly laid to lawn with planted borders. Viewings are highly recommended.
Front External
To the front of the property is a double driveway and a small gravelled garden.
Porch
With engineered oak flooring.
Hallway
Including engineered oak flooring, a radiator and a built in cupboard.
Living Room 5.452m x 3.648m
Spacious living room including laminate flooring, a radiator and French doors leading to the rear garden.
Dining Room 3.48m x 2.82m
Dining room with laminate flooring, a radiator, a built in cupboard and a double glazed window to the side.
Kitchen/Dining/Snug 5.08m x 3.872m
Modern fitted kitchen including fitted wall and base units with a contrasting work surface, sink with a mixer tap, an integrated oven, four ring induction hob, extractor fan, an integrated slimline dishwasher, laminate flooring, a radiator, double glazed window to the side, two double glazed windows to the rear and a door leading to the rear garden.
Utility Room/WC 2.051m x 1.631m
Including fitted wall and base units with a contrasting work surface, sink/drainer with a mixer tap, an integrated fridge/freezer, plumbing for a washing machine, laminate flooring, a low level WC, chrome towel heater, double glazed window to the front.
Master Bedroom 4.051m x 3.633m
Master bedroom including fitted wardrobes, carpet flooring, a radiator and a double glazed window to the front.
Bedroom Two 3.218m x 2.838m
Bedroom with laminate flooring, a radiator and a double glazed window to the front.
Shower Room 2.031m x 1.680m
Bathroom including a shower cubicle with a mains shower, low level WC, wash hand basin, towel heater, partially tiled walls, LVT flooring, an extractor fan, loft access and a double glazed window to the side.
Rear Garden
To the rear of the property is a West facing garden with lawn, paved patio and a storage shed.
Agent Notes
1. The property is in council tax band B.
2. The seller has informed us that the property is freehold.
3. Utilities - Mains water, sewerage, electricity and gas.
4. Ultrafast broadband available to this property (checker.ofcom.org.uk)
5. Flood Risk - Rivers and Sea - very low, Surface Water - low (gov.uk)
Disclaimer
The preceding details have been sourced from the seller and the websites listed above. Verification and clarification of this information, along with any further details concerning Material Information parts A, B & C, should be sought from a legal representative or appropriate authorities. Newfield Estates cannot accept liability for any information provided.